- Краснодарский край Красное
- Размещено: 8 октября 9:00
879.000 руб.

Номер: BLD-987651759903215678
Тел.:
Тип предложения | Продажа |
Вид объекта | свободного назначения |
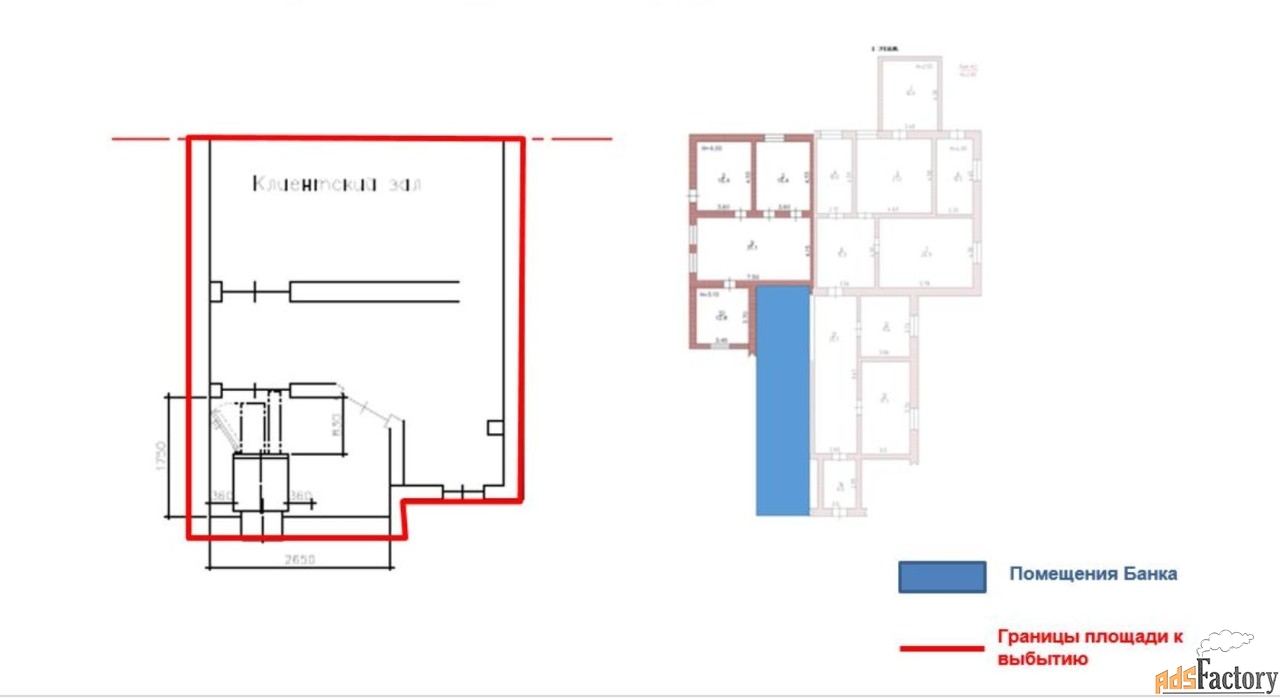
Площадь (м²) | 49.5 |
Продажа посредством проведения торгов на электронной площадке Сбербанк-АСТ.
Номер процедуры: SBR065-2509170010
Собственник: Юго-Западный Банк ПАО Сбербанк
О лоте:
Нежилое помещение площадью 49.50 кв.м
Этажность: 1
Кадастровый номер: 23:17:1302013:507
Обратная аренда: нет
Особые условия: На объекте располагается ПАО Сбербанк ВСП № 8619/0879, дата закрытия офиса 26.09.2025г., остальные условия в «Аукционной документации».
Дополнительная информация, документы и условия реализации указаны на площадке в разделе «Документы».
По всем вопросам, связанным с лотом, обращайтесь в рабочее время по телефону с 09:00 до 18:00 по МСК. [#7506989#]