- Татарстан Казань
- Размещено: 8 октября 9:00
1.584.339 руб.

Номер: BLD-987651759903212356
Тел.:
Тип предложения | Сдам в аренду (долгосрочно) |
Вид объекта | свободного назначения |
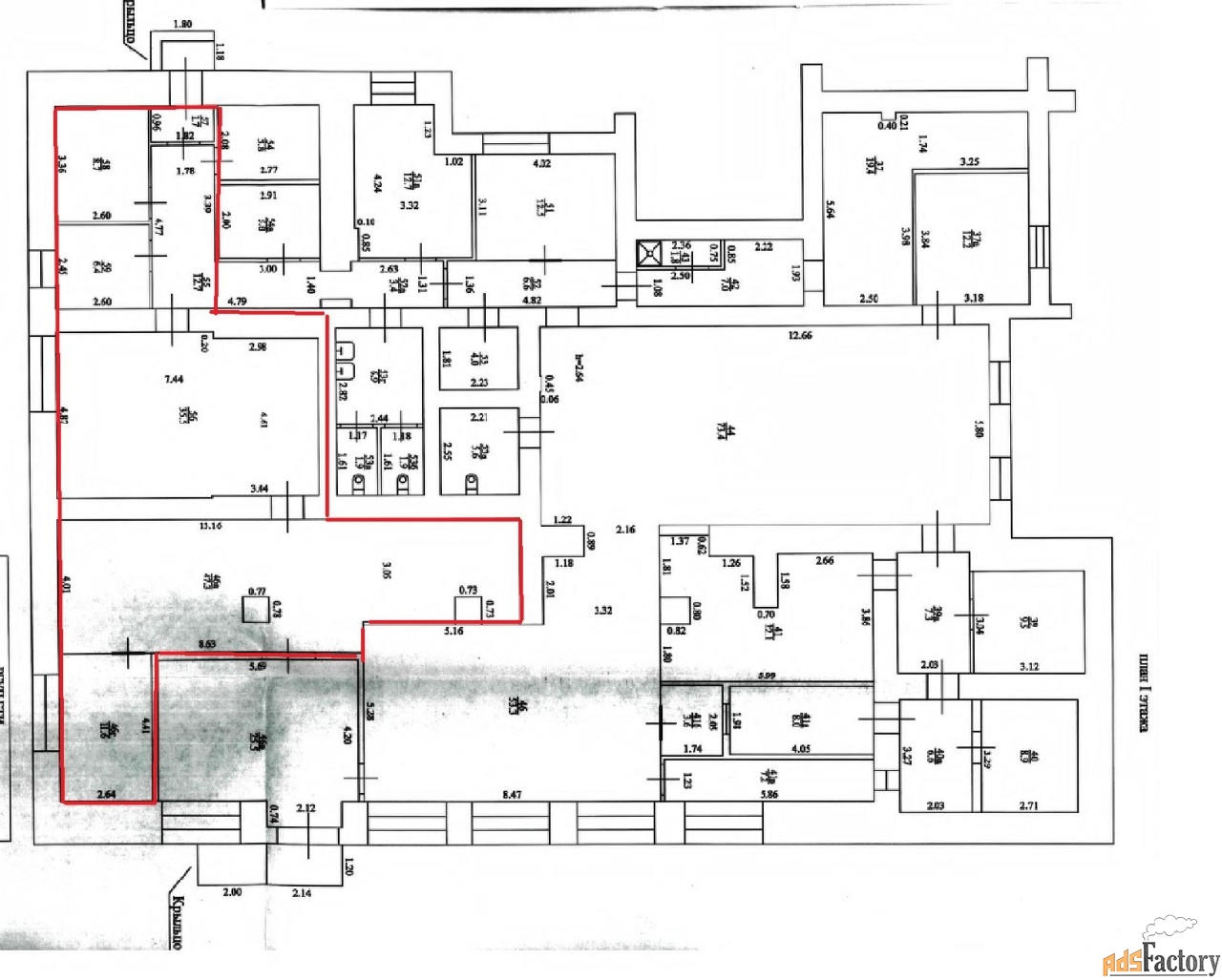
Площадь (м²) | 119.7 |
Аренда посредством проведения торгов на электронной площадке Сбербанк-АСТ.
Номер процедуры: SBR065-2509150004
Собственник: Волго-Вятский банк ПАО Сбербанк
О лоте:
Нежилое помещение общей площадью 119,7
кв.м.
Этажность: 1/1
Кадастровый номер: 16:50:220538:1026
Срок аренды: 5 лет
Особые условия: Арендатор имеет право передать помещение в субаренду, остальные условия в «Аукционной документации»
Дополнительная информация, документы и условия реализации указаны на площадке в разделе «Документы».
По всем вопросам, связанным с лотом, обращайтесь в рабочее время по телефону с 09: 00 до 18: 00 по МСК. [#7283623#]