- Воронежская область Россошь
- Размещено: 8 октября 9:00
44.229 руб.

Номер: BLD-987651759903212315
Тел.:
Тип предложения | Сдам в аренду (долгосрочно) |
Вид объекта | свободного назначения |
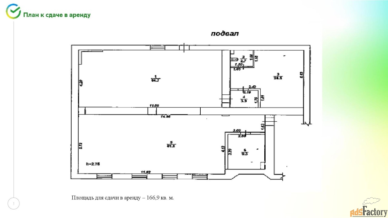
Площадь (м²) | 166.9 |
Аренда посредством проведения торгов на электронной площадке Сбербанк-АСТ.
Номер процедуры: SBR065-2507180001
Собственник: Центрально-Черноземный банк ПАО Сбербанк
О лоте:
Нежилое помещение общей площадью: 166,9 кв. м
Этаж: 1/1
кадастровый номер :36:27:0012022:45
Срок аренды: 60 месяцев
Дополнительная информация, документы и условия реализации указаны на площадке в разделе «Документы».
По всем вопросам, связанным с лотом, обращайтесь в рабочее время по телефону с 09: 00 до 18: 00 по МСК [#7199620#]