- Тамбовская область Тамбов
- Размещено: 8 октября 9:00
5.856 руб.

Номер: BLD-987651759903212341
Тел.:
Тип предложения | Сдам в аренду (долгосрочно) |
Вид объекта | свободного назначения |
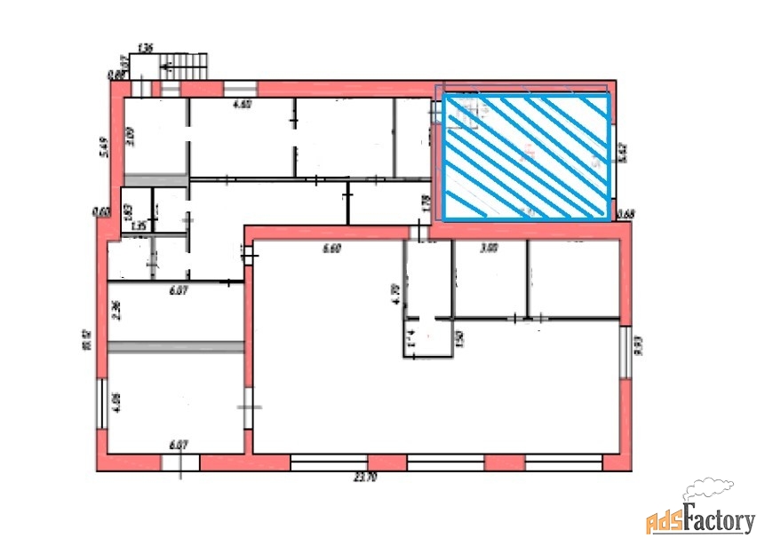
Площадь (м²) | 36.6 |
Продажа посредством проведения торгов на электронной площадке Сбербанк-АСТ.
Номер процедуры: SBR065-2510070002
Собственник: Центрально-Черноземный банк ПАО Сбербанк
О лоте:
Нежилое помещение общей площадью: 36.60 кв.м.
этаж: 1/1
Кадастровый номер: 68:29:0206008:56
Срок аренды: 5 лет
Особые условия:
Коммунальные и эксплуатационные платежи по Объекту оплачиваются дополнительно:
Дополнительная информация, документы и условия реализации указаны на площадке в разделе «Документы».
По всем вопросам, связанным с лотом, обращайтесь в рабочее время по телефону с 09: 00 до 18: 00 по МСК. [#7252046#]