- Ставропольский край Георгиевск
- Размещено: 8 октября 9:00
75.447.563 руб.

Номер: BLD-987651759903209166
Тел.:
Тип предложения | Продажа |
Вид объекта | свободного назначения |
Площадь (м²) | 3632.4 |
Продажа посредством проведения торгов на электронной площадке Сбербанк-АСТ.
Номер процедуры: SBR065-2509020006
Собственник: Юго-Западный Банк ПАО Сбербанк
О лоте:
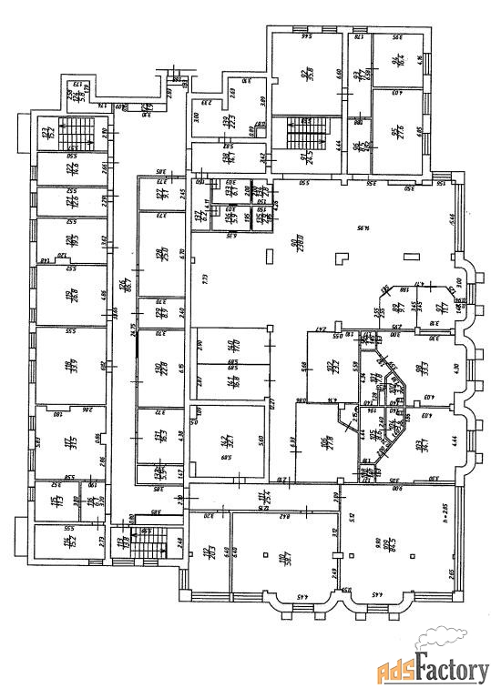
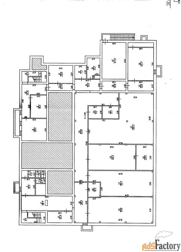
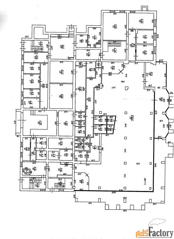
Объект 1:
Нежилое здание площадью 3563 кв.м
Этажность: 3, в том числе подземных 1.
Кадастровый номер: 26:26:010531:200
Объект 2:
Нежилое здание площадью 69,4 кв.м.
Этажность: 2
Кадастровый номер: 26:26:010531:201
Объект 3:
Земельный участок площадью 2956 кв.м
Кадастровый номер: 26:26:010531:10
ВРИ: Для осуществления банковской деятельности
Категория земель: Земли населенных пунктов;
Обратная аренда: да
Особые условия: нет
Дополнительная информация, документы и условия реализации указаны на площадке в разделе «Документы».
По всем вопросам, связанным с лотом, обращайтесь в рабочее время по телефону с 09: 00 до 18: 00 по МСК. [#6857080#]