- Краснодарский край Кубанский
- Размещено: 8 октября 9:00
2.552.117 руб.

Номер: BLD-987651759903209133
Тел.:
Тип предложения | Продажа |
Вид объекта | свободного назначения |
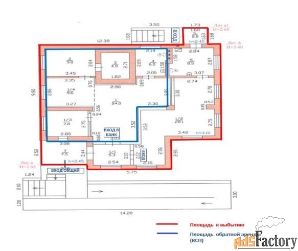
Площадь (м²) | 119.1 |
Номер процедуры: SBR065-2504160009
Продажа посредством проведения торгов на электронной площадке Сбербанк-АСТ.
Собственник: ПАО Сбербанк
Нежилое здание,
общая площадь: 119,1 м2
этажность: 1
кадастровый номер: 23:22:0602002:3842
Газопровод низкого давления
Земельный участок:
общая площадь: 1229,0 м2
кадастровый номер ЗУ: 23:22:0602002:917
Особые условия: обратная аренда
Дополнительная информация, документы и условия реализации указаны на площадке в разделе «Документы».
По всем вопросам, связанным с лотом, обращайтесь в рабочее время по телефону с 09:00 до 18:00 по МСК. [#6335442#]