- Тюменская область Абатское
- Размещено: 8 октября 9:00
4.668.000 руб.

Номер: BLD-987651759903209134
Тел.:
Тип предложения | Продажа |
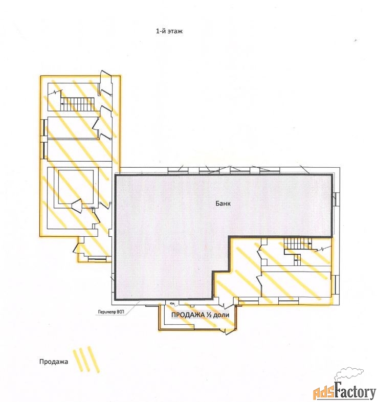
Вид объекта | свободного назначения |
Площадь (м²) | 377.4 |
Продажа посредством проведения торгов на электронной площадке Сбербанк-АСТ.
Номер процедуры: SBR065-2503280010
Собственник: ПАО Сбербанк
Нежилые помещения
кадастровый номер: 72:02:0407021:74
Дополнительная информация, документы и условия реализации указаны на площадке в разделе «Документы».
По всем вопросам, связанным с лотом, обращайтесь в рабочее время по телефону с 09: 00 до 18: 00 по МСК. [#6339139#]