- Ленинградская область Санкт-Петербург
- Размещено: 31 октября 9:00
164.000.000 руб.
Номер: BLD-98765176189040780
Тел.:
| Тип предложения | Продажа |
| Вид объекта | свободного назначения |
| Площадь (м²) | 909.2 |
Продажа посредством проведения торгов на электронной площадке Сбербанк-АСТ.
Номер процедуры: SBR065-2510290004
Собственник: Северо-Западный банк ПАО Сбербанк
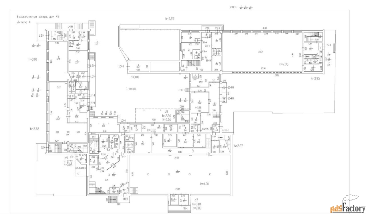
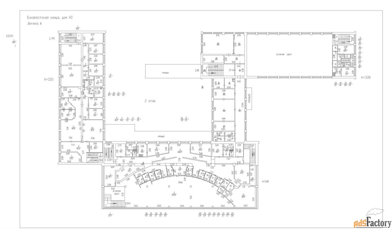
О лоте:
Нежилое помещение общей площадью: 909,2 кв.м
Этаж: 1/2
кадастровый номер: 78:13:0007412:5009
Обратная аренда: нет
Особые условия: нет
Дополнительная информация, документы и условия реализации указаны на площадке в разделе «Документы».
По всем вопросам, связанным с лотом, обращайтесь в рабочее время по телефону с 09:00 до 18:00 по МСК. [#6790216#]



