- Московская область Москва
- Размещено: 17 октября 9:00
- Обновлено: 27 ноября 6:10
600.000.000 руб.
Номер: BLD-987651760680810459
Тел.:
| Ближайшее метро | Тропарево, 0 метров |
| Тип предложения | Продажа |
| Вид объекта | офисное помещение |
| Площадь (м²) | 1727.5 |
Прямая продажа от собственника!
Офис расположен в элитном ЖК «Корона Эйр» и имеет отдельный вход не только в
здание, но и на территорию ЖК.
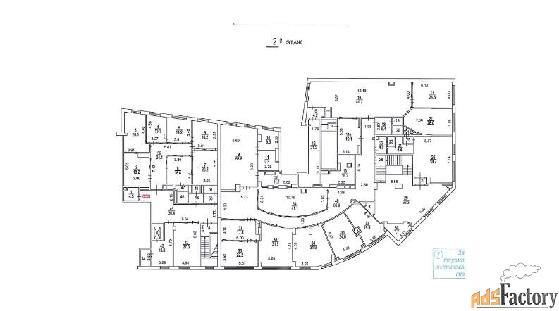
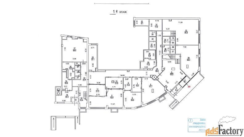
Двухэтажный офис общей площадью 1727,5 кв.м.
Высота потолков на первом этаже 3,6 м, на втором 3,2 м.
Помещение офиса оснащены всем необходимым для комфортной и полноценной работы
руководителей и сотрудников (кабинеты руководителей, приемные, кабинеты
сотрудников, зал совещаний, серверная, 8 уборных, кухня, комната приема пищи и т.д.).
Установлена система видеонаблюдения, вентиляция, кондиционирование.
Закрытая территория ЖК имеется две большие наземные парковки и подземный паркинг,
а также имеет собственный зоопарк, парк и водоем.
За офисом закреплено 10 машиномест на наземной парковке. [#7426621#]



