- Московская область Москва
- Размещено: 17 октября 9:00
- Обновлено: 27 ноября 6:10
3.960.000 руб.
Номер: BLD-987651760680809388
Тел.:
| Ближайшее метро | Хорошево, 0 метров |
| Тип предложения | Сдам в аренду (долгосрочно) |
| Вид объекта | кафе,бары,рестораны |
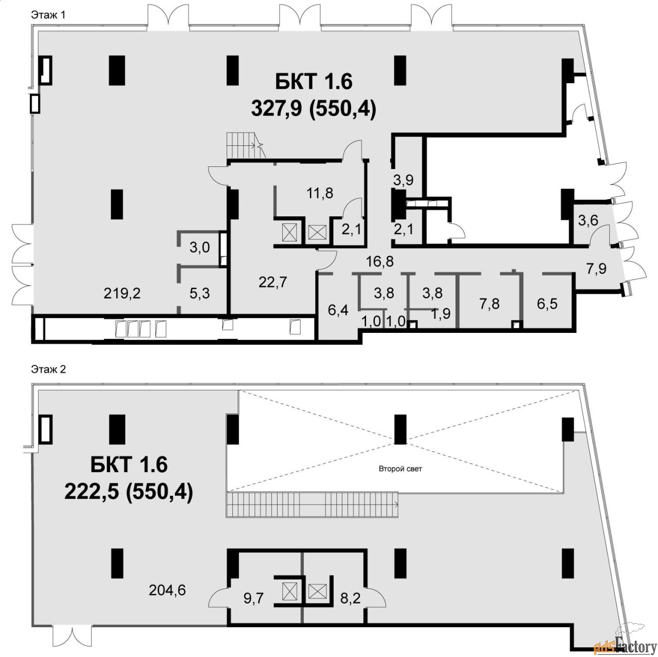
| Площадь (м²) | 550.4 |
Ищете уникальное пространство для ресторана в самом сердце деловой жизни Москвы? У вас есть шанс открыть заведение в премиальном БЦ Sydney City на Шелепихинской набережной - с панорамными окнами, высоким потолком и перспективной локацией.
Адрес: ул. Шеногина, земельный участок 2/11
Арендные каникулы - есть!
Площадь: 550,4 м (два полноценных этажа)
Состояние: shell&core (без отделки - можно воплотить собственный дизайн)
Высота потолков: 3,8 м
Мощность: 120 кВт
Панорамное остекление в пол + витринные окна
4 отдельных входа
Шаг колонн: 8,4 8,4 м
Инженерия БЦ премиум-уровня:
Энерговооруженность - 100 Вт/м
Воздухообмен - 60 м/ч
Кондиционирование - чиллер/фанкойл
Автоматическая система пожаротушения, АПС, СОУЭ, ДУ
Диспетчеризация и автоматика всех инженерных систем
5 лифтовых групп, в том числе 17 грузопассажирских лифтов
Транспортная доступность:
Сейчас: 15 минут пешком до метро и МЦК «Шелепиха»
С 2026 года: новая станция метро «Звенигородская» - всего 1 минута пешком!
Инфраструктура:
24-этажный бизнес-центр находится в центре флагманского проекта премиум-класса от ГК ФСК - Sydney City. Первый жилой квартал в концепции well being в Москве.
На территории в 19,3 га ведется строительство 23 корпусов, переменной этажности 8-44 этажей.
Квартал обладает развитой собственной социальной и коммерческой инфраструктурой, начиная от престижной школы и д/с и заканчивая фудхоллом и развлекательным центром.
Активный пешеходный и деловой трафик.
Условия аренды:
Эксплуатационные и коммунальные платежи оплачиваются отдельно по факту (счета от УК) . Гибкие условия. Прямой договор.
Звоните, чтобы назначить просмотр и обсудить условия! [#7364142#]



