- Московская область Москва
- Размещено: 3 декабря 9:00
612.452 руб.
Номер: BLD-987651764741622950
Тел.:
| Ближайшее метро | Текстильщики, 0 метров |
| Тип предложения | Сдам в аренду (долгосрочно) |
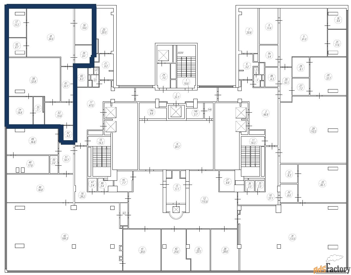
| Вид объекта | офисное помещение |
| Площадь (м²) | 242.82 |
Номер налоговой объекта - 22, предоставляется юридический адрес.
Высота потолков: 2.8 м.
Офис предоставляется в прямую аренду, срок аренды - от 11 месяцев, с предоплатой за 1 месяц.
В ставку включены: коммунальные платежи, эксплуатационные расходы.
Офис со стандартной отделкой, комнат в аренду - 10, внутри смешанная планировка, на полу ковролин, одна мокрая точка.
Доступ в здание круглосуточный, пропускная система.
Охрана, в офисе местное кондиционирование, вентиляция офиса - приточная, центральное отопление, спринклерная система пожаротушения.
Отдельная охраняемая многоуровневая парковка, парковка на 424 машиномест, гостевой паркинг (не более трёх часов на 1 а/м).
Коммерческие условия:
Базовая ставка - 21 600 руб. м.кв.год
Эксплуатационные расходы - 5 136 руб. м.кв.год
Коммунальные платежи - 3 531 руб. м.кв.год [#7838770#]



