- Ленинградская область Санкт-Петербург
- Размещено: 8 ноября 9:00
32.928.362 руб.
Номер: BLD-987651762581615795
Тел.:
| Ближайшее метро | Улица Дыбенко, 0 метров |
| Тип предложения | Продажа |
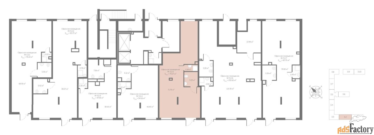
| Вид объекта | свободного назначения |
| Площадь (м²) | 79.27 |
«Zoom на Неве» расположен на берегу Невы в непосредственной близости от центра города. Комплекс состоит на 1 700 апартаментов. Локация, масштаб объекта и тип недвижимости - слагаемые высокой потребительской активности среди жителей и гостей комплекса. [#7699691#]



