- Магаданская область Палатка
- Размещено: 11 ноября 9:00
2.509.586 руб.
Номер: BLD-98765176284080841
Тел.:
| Тип предложения | Продажа |
| Вид объекта | свободного назначения |
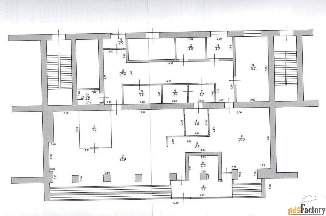
| Площадь (м²) | 89.7 |
Продажа посредством проведения торгов на электронной площадке Сбербанк-АСТ.
Номер процедуры: SBR065-2509160012
Ссылка на торги: https://utp.sberbank-ast.ru/Property/NBT/PurchaseView/20/0/0/3413533
Собственник: Дальневосточный банк ПАО Сбербанк
О лоте:
Нежилые помещения общей площадью 89,7 кв. м
Этаж: 2/5
Кадастровый номер: 49:07:040006:406
Обратная аренда: нет
Особые условия: нет
Дополнительная информация, документы и условия реализации указаны на площадке в разделе «Документы».
По всем вопросам, связанным с лотом, обращайтесь в рабочее время по телефону с 09: 00 до 18: 00 по МСК. [#6100752#]



