- Нижегородская область Ждановский
- Размещено: 11 ноября 9:00
31.084 руб.
Номер: BLD-98765176284080986
Тел.:
| Тип предложения | Сдам в аренду (долгосрочно) |
| Вид объекта | свободного назначения |
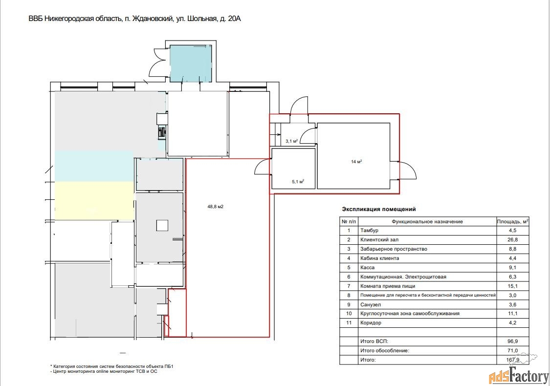
| Площадь (м²) | 71 |
Аренда посредством проведения торгов на электронной площадке Сбербанк-АСТ.
Номер процедуры: SBR065-2503270003
Собственник: Волго-Вятский банк ПАО Сбербанк
Нежилое помещение, общая площадь: 71
этаж: 1
Дополнительная информация, документы и условия реализации указаны на площадке в разделе «Документы».
По всем вопросам, связанным с лотом, обращайтесь в рабочее время по телефону с 09:00 до 18:00 по МСК. [#6795667#]



