- Саха (Якутия) Якутск
- Размещено: 11 ноября 9:00
2.980.383 руб.
Номер: BLD-98765176284080849
Тел.:
| Тип предложения | Продажа |
| Вид объекта | свободного назначения |
| Площадь (м²) | 222.17 |
Продажа посредством проведения торгов на электронной площадке Сбербанк-АСТ.
Номер процедуры: SBR065-2502270002
Собственник: ПАО Сбербанк
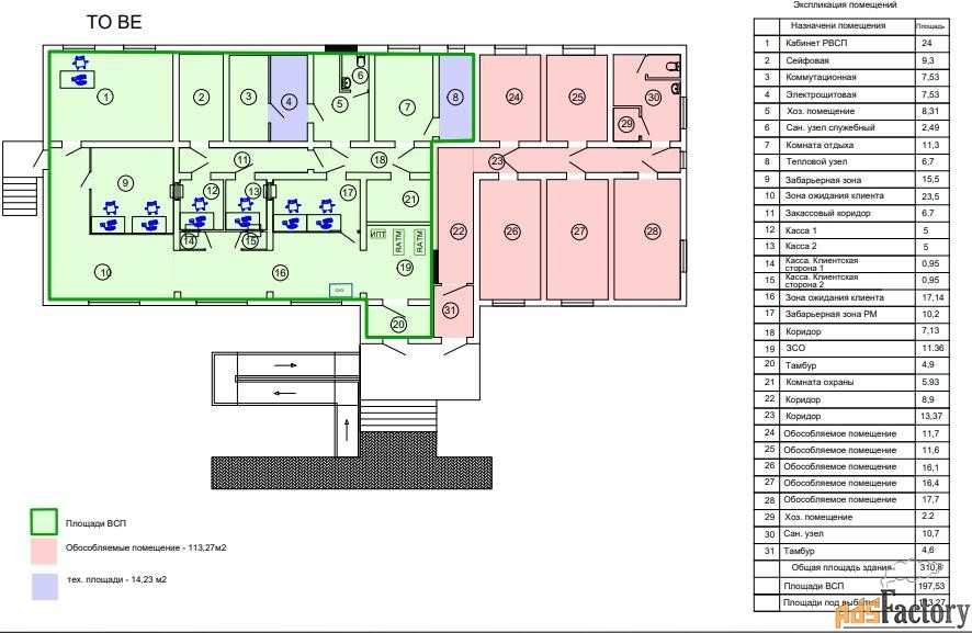
Нежилое помещение,
общая площадь: 113,27 м2
кадастровый номер: 14:04:004004:777
Гараж,
общая площадь: 93 м2
кадастровый номер: 14:04:004004:4401
Гараж,
общая площадь: 15,9 м2
кадастровый номер: 14:04:004004:4400
Доля земельного участка,
общая площадь: 618,28 м2
кадастровый номер ЗУ: 14:04:004004:522
По всем вопросам, связанным с лотом, обращайтесь в рабочее время по телефону с 09:00 до 18:00 по МСК. [#6127526#]



