- Краснодарский край Краснодар
- Размещено: 16 октября 9:00
4.817.000 руб.

Номер: BLD-987651760594414929
Тел.:
Тип предложения | Продажа |
Вид объекта | свободного назначения |
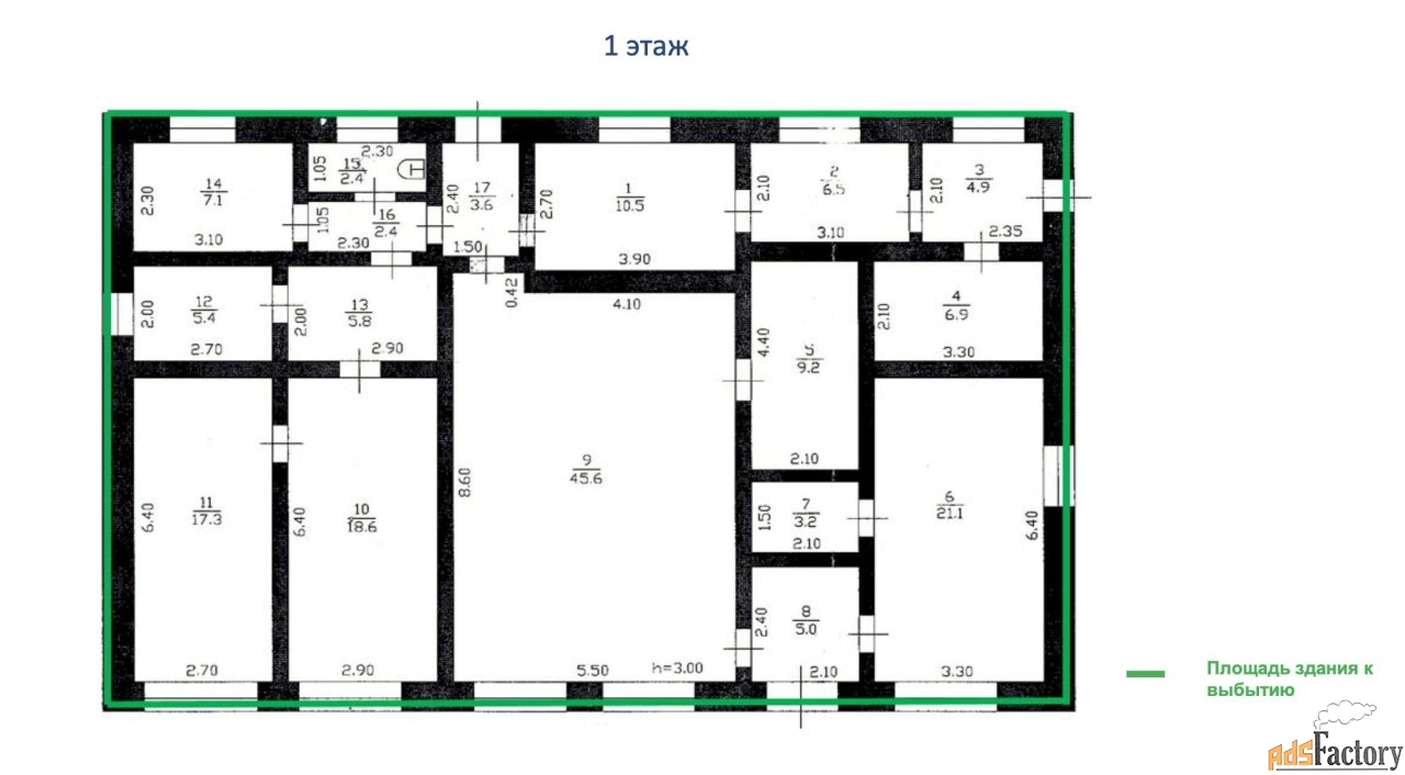
Площадь (м²) | 175.5 |
Продажа посредством проведения торгов на электронной площадке Сбербанк-АСТ.
Номер процедуры: SBR065-2510090009
Собственник: Юго-Западный Банк ПАО Сбербанк
О лоте:
Нежилое помещение общей площадью: 175,5 кв.м.
Этаж: 1
Дополнительная информация, документы и условия реализации указаны на площадке в разделе «Документы». По всем вопросам, связанным с лотом, обращайтесь в рабочее время по телефону с 09: 00 до 18: 00 по МСК. [#7604301#]