- Томская область Томск
- Размещено: 8 октября 9:00
2.337.640 руб.

Номер: BLD-987651759903218958
Тел.:
Тип предложения | Продажа |
Вид объекта | свободного назначения |
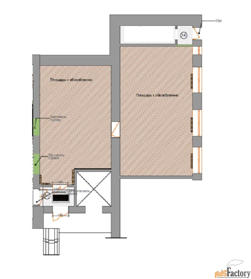
Площадь (м²) | 108.09 |
Реализация посредством проведения торгов на электронной площадке Сбербанк-АСТ.
Номер процедуры: SBR065-2510030006
Собственник: Сибирский банк ПАО Сбербанк
О лоте:
Объект 1:
Нежилое помещение площадью 108,09 кв.м
Этаж: 1
Кадастровый номер: 70:04:0101002:2567
Обратная аренда: нет
Особые условия:
ПАО Сбербанк передает Покупателю Объект по акту приема-передачи не позднее 30.06.2026 года, остальные условия указаны в «Аукционной документации» к лоту.
Дополнительная информация, документы и условия реализации указаны на площадке в разделе «Документы».
По всем вопросам, связанным с лотом, обращайтесь в рабочее время по телефону с 09:00 до 18:00 по МСК. [#7559451#]