- Московская область Москва
- Размещено: 2 октября 9:00
100.418.780 руб.

Номер: BLD-987651759384816758
Тел.:
Ближайшее метро | Зорге, 0 метров |
Тип предложения | Продажа |
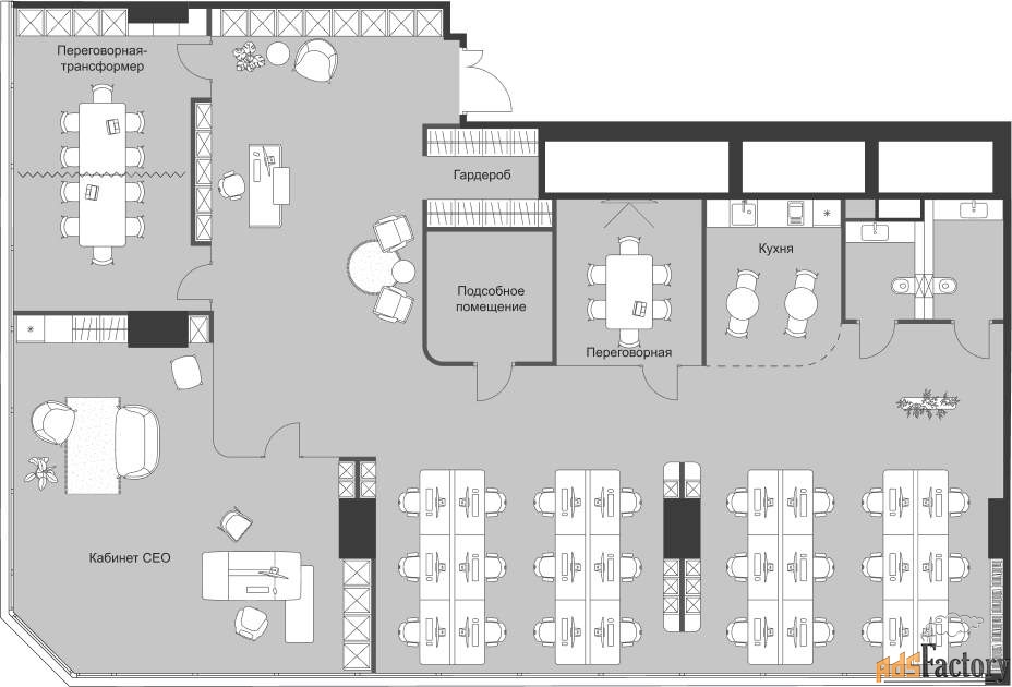
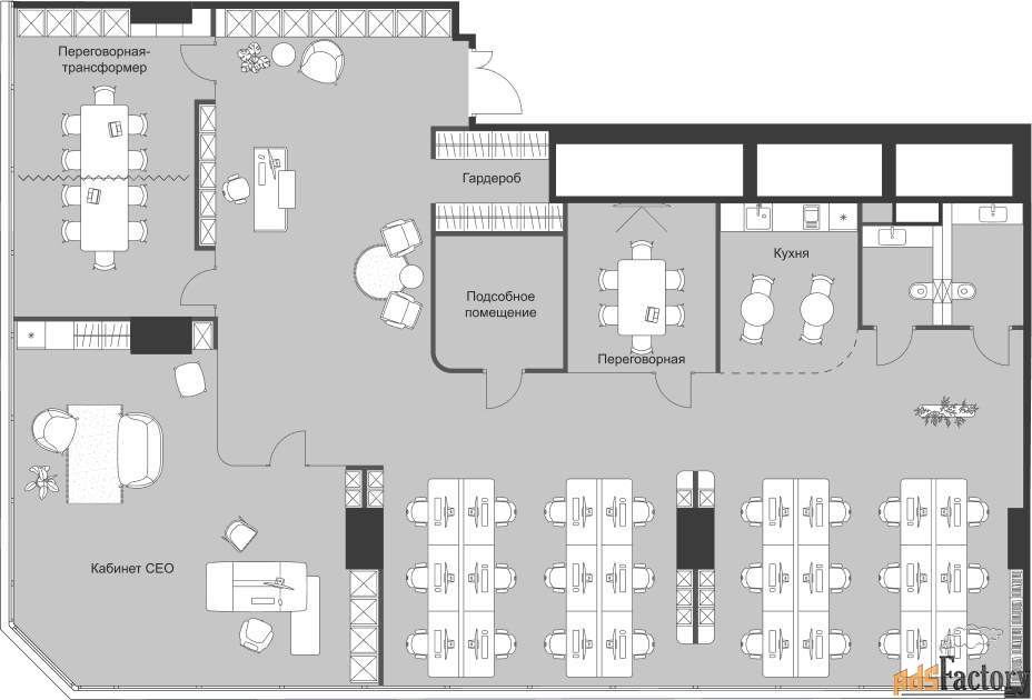
Вид объекта | офисное помещение |
Площадь (м²) | 254.87 |
Вход - общий с улицы, вентиляция - приточная.
Подземная парковка, парковка на 400 машиномест. Инфраструктура: аптека, банкомат, кафе, минимаркет, парк, ресторан, салон красоты, супермаркет, торговая зона, фуд-корт. [#7533210#]