- Московская область Москва
- Размещено: 22 июля 9:00
- Обновлено: 13 декабря 6:10
1.000.000 руб.
Номер: BLD-987651753164014929
Тел.:
| Ближайшее метро | Курская, 0 метров |
| Тип предложения | Сдам в аренду (долгосрочно) |
| Вид объекта | свободного назначения |
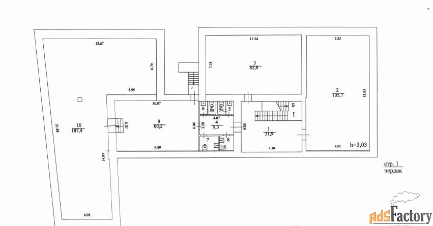
| Площадь (м²) | 505 |
Возможное назначение - прочее, высота потолков 3.9 м, внутри типовой ремонт, на полу плитка, одна мокрая точка, тип окон - витринные, окна выходят на улицу, здание полностью функционирует.
Внутри местное кондиционирование, пожарная сигнализация, внутри есть водоснабжение.
Вход - общий с улицы, доступ в здание свободный, объект находится под охраной.
Парковка автомобилей - наземная.
помещение в ремонте [#7208338#]



