- Московская область Москва
- Размещено: 16 августа 9:00
- Обновлено: 17 ноября 6:10
389.988 руб.
Номер: BLD-987651755324012790
Тел.:
| Ближайшее метро | Чкаловская, 0 метров |
| Тип предложения | Сдам в аренду (долгосрочно) |
| Вид объекта | свободного назначения |
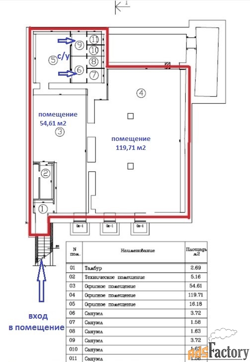
| Площадь (м²) | 212.2 |
Окна в приямках.
Отдельный вход с Подсосенского переулка, автономный от здания.
Смешанная планировка, преимущественно OPEN SPACE
Высота потолков 2,7 метров.
Помещение оборудовано всеми необходимыми инженерно-техническими системами.
Система кондиционирования
Достаточная электрическая мощность.
Локальная сеть разведена по периметру помещения.
Стихийная парковка. [#7307716#]



