- Удмуртия Ижевск
- Размещено: 13 августа 9:00
- Обновлено: 16 ноября 6:10
40.460 руб.
Номер: BLD-987651755064810514
Тел.:
| Тип предложения | Сдам в аренду (долгосрочно) |
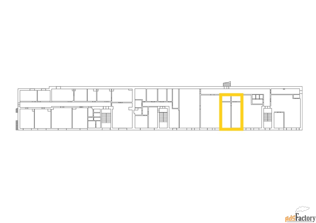
| Вид объекта | офисное помещение |
| Площадь (м²) | 57.8 |
Подходит для компаний, которым важны:
— аренда офиса от собственника без комиссии
— офисное помещение в аренду в Ижевске
— офис рядом с центром и вокзалом
— снять офис в аренду с парковкой и удобным подъездом
ОПИСАНИЕ ОБЪЕКТА:
Общая площадь - 57,8 м2. Состоит из нескольких кабинетов
Помещения на 2 этаже.
Высота потолков 2,5 м2.
Выполнен свежий косметический ремонт.
Коридорная система, санузел на этаже
В здании также расположены современная столовая и торговая зона
ПРЕИМУЩЕСТВА ЛОКАЦИИ:
15 минут до центра города
5 минут до ж/д вокзала
Удобная транспортная развязка
Быстрые выезды на федеральную М7 и региональную Р320 трассы
Остановки общественного транспорта в шаговой доступности
Круглосуточный доступ 24/7
Прилегающая парковка на 160 мест.
Условия заключение договора аренды:
— Минимальный срок договора аренды – 11 месяцев;
— Обеспечительный платеж в размере одного месяца арендной платы;
— Электричество и отопление оплачиваются дополнительно по счетчику;
— Арендная ставка в месяц – 700/м2 + НДС в размере 5%. [#7178694#]



