- Алтайский край Павловск
- Размещено: 22 января 9:12
23.500.000 руб.
Номер: BLD-9876517690623431478
Тел.:
| Ближайшее метро | Шушары, 0 метров |
| Тип предложения | Продажа |
| Торг | Нет |
| Тип продажи | свободная продажа |
| Число комнат | 3 |
| Этаж | 3 |
| Этажность здания | 3 |
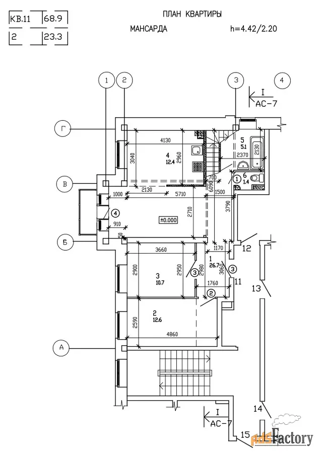
| Общая площадь (кв.м) | 68.6 |
| Жилая площадь (кв.м) | 23.3 |
| Площадь кухни (кв.м) | 12.4 |
| Год постройки (г.) | 0 |
| Материал стен | кирпичный |
| Состояние | требует ремонта |
| Санузел | раздельный |
| Дополнительные параметры | |
| Балкон или лоджия | |
| Центральное водоснабжение | |
Жилая площадь 23.3 м2, кухня 12.4 кв.м, ремонт не нужен, можно жить, есть бытовая техника: стиральная машина, холодильник, телевизор, кондиционер, посудомоечная машина, микроволновая печь. Раздельных санузлов - 1.
На полу ламинат, балконов - 1, окна выходят во двор.
Квартира располагается на 3 этаже 3-этажного дома.
Сделана перепланировка - надстроена антресоль, площадью 10 кв.м. Проект согласован и утвержден. Площадь антресоли в общую площадь не входит. Все остальное на фотографиях. Площадка для стоянки автомобилей внутри огороженной территории. До входа в Павловский парк - 500 метров. Продовольственный магазин в 30 метрах. Рядом остановка автобуса. Один взрослый собственник. Никто не прописан. Без обременений. Звоните, приезжайте, поторгуемся, найдём общий язык, достигнем результата! [#7930513#]



