- Ульяновская область Ульяновск
- Размещено: 16 декабря 9:00
134.960 руб.
Номер: BLD-987651765864811257
Тел.:
| Тип предложения | Сдам в аренду (долгосрочно) |
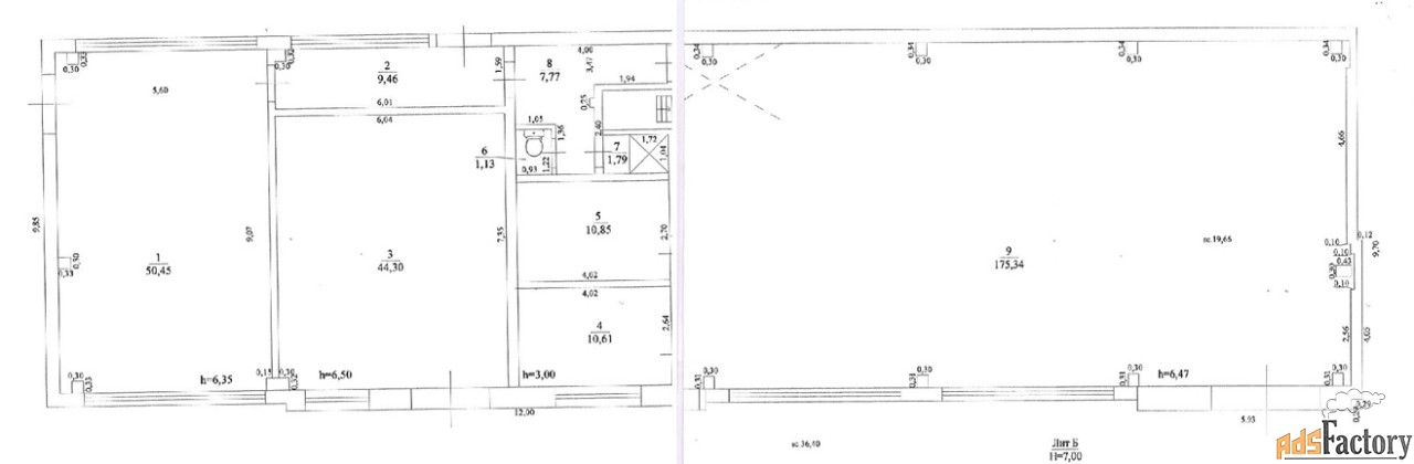
| Вид объекта | производственно-складской комплекс/помещение |
| Площадь (м²) | 337.4 |
Отдельно стоящее здание на территории производственной базы периметр огорожен, видеонаблюдение, КПП, охрана круглосуточно. Доступ 24/7.
Характеристики:
- Высота потолка – 6,5м
- Кран-балка – 2 тонны (аренда обговаривается отдельно)
- Сетевое напряжение – 220В, 380В.
- Санузел, душевая комната.
- Есть отдельные помещения для складов с отдельным входом, раздевалки, комнаты приёма пищи.
- Пол бетонный, есть приямки.
- Отопление автономное, газовая котельная.
Коммунальные услуги оплачиваются отдельно, эл/эн по счётчику, отопление рассчитывается пропорционально занимаемой площади.
Готовы подготовить площадь под запрос арендатора.
Аренда от собственника.
Звоните, договоримся о показе! [#7321514#]



