- Ненецкий АО Нарьян-Мар
- Размещено: 12 декабря 9:00
9.435.000 руб.
Номер: BLD-987651765519215817
Тел.:
| Тип предложения | Продажа |
| Вид объекта | свободного назначения |
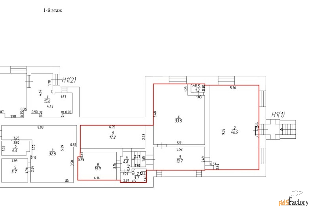
| Площадь (м²) | 122.6 |
Продажа посредством проведения торгов на электронной площадке Сбербанк-АСТ.
Номер процедуры: SBR065-2511210004
Собственник: Северо-Западный банк ПАО Сбербанк
О лоте:
Нежилое помещение общей площадью: 122,6 кв.м.
Этаж: 1
Кадастровый номер: 83:00:060102:344
Дополнительная информация, документы и условия реализации указаны на площадке в разделе «Документы». По всем вопросам, связанным с лотом, обращайтесь в рабочее время по телефону с 09: 00 до 18: 00 по МСК. [#7786301#]



