- Алтайский край Яровое
- Размещено: 12 декабря 9:00
4.740.000 руб.
Номер: BLD-987651765519212402
Тел.:
| Тип предложения | Продажа |
| Вид объекта | свободного назначения |
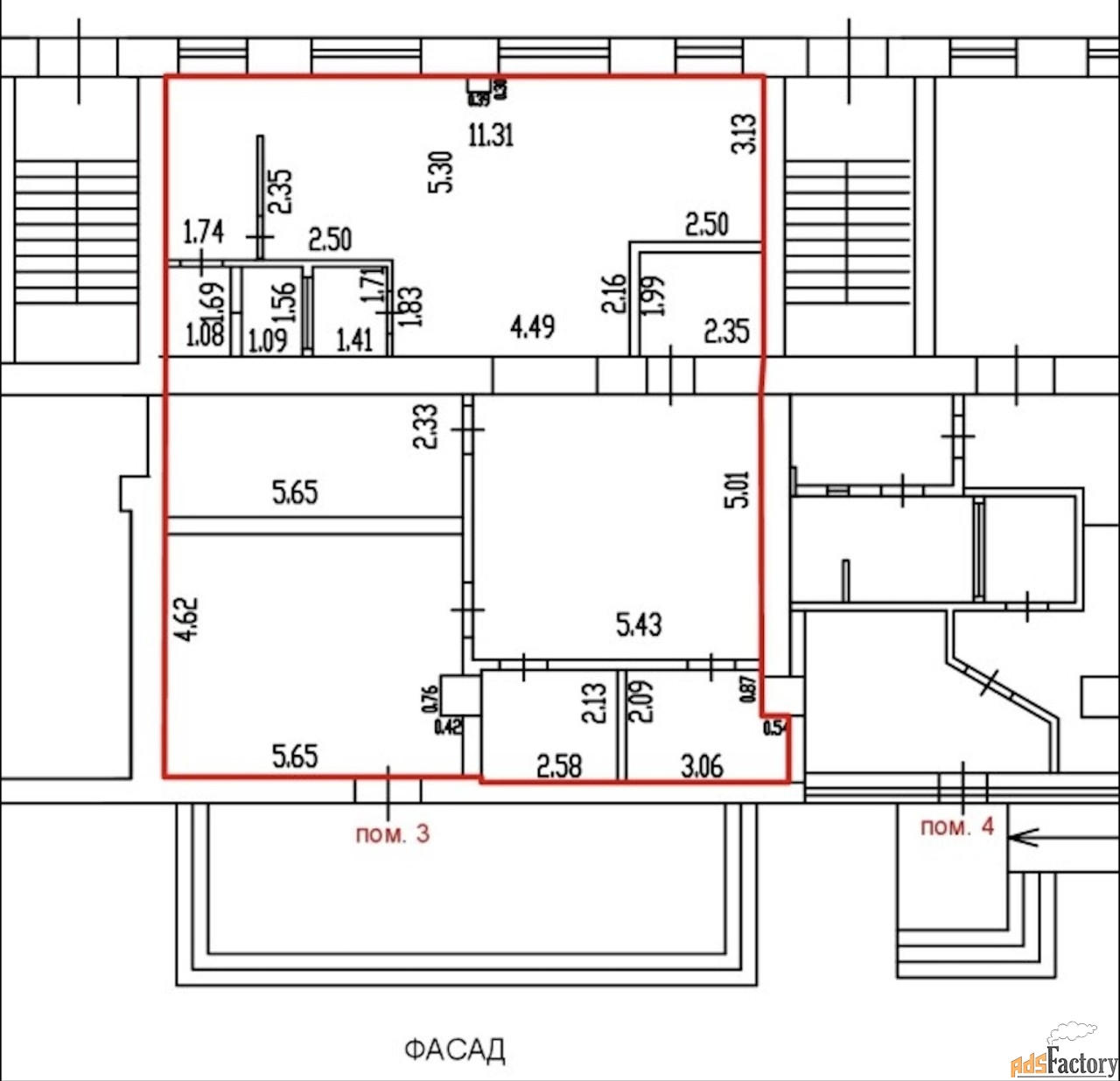
| Площадь (м²) | 134.5 |
Продажа посредством проведения торгов на электронной площадке Сбербанк-АСТ.
Номер процедуры: SBR065-2510310007
Собственник: Сибирский банк ПАО Сбербанк
О лоте:
Нежилое помещение площадью 134,5 кв.м
Этажность: 1
Кадастровый номер: 22:72:060403:1762
Обратная аренда: нет
Особые условия:
Особые условия указаны в «Аукционной документации» к лоту.
Дополнительная информация, документы и условия реализации указаны на площадке в разделе «Документы».
По всем вопросам, связанным с лотом, обращайтесь в рабочее время по телефону с 09:00 до 18:00 по МСК. [#7517057#]



