- Московская область Москва
- Размещено: 20 ноября 9:00
130.000.000 руб.
Номер: BLD-987651763618415910
Тел.:
| Тип предложения | Продажа |
| Вид объекта | свободного назначения |
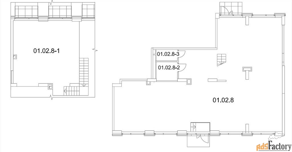
| Площадь (м²) | 266 |
Это нежилое помещение со стильными фасадами, окружено модным ландшафтным дизайном. Разработано архитекторами для размещения кафе или ресторана, детского или фитнес-клуба, коворкинга для работы, магазина, супермаркета, салона красоты, СПА.
По новым нормам подходит для размещения МЕДИЦИНСКОГО ЦЕНТРА: амбулаторного и диагностического центра.
- Большие панорамные витринные окна (9 окон).
- Высокие потолки 7 метров.
- Презентабельный фасад и входные группы.
- 2 отдельных входа с противоположных сторон помещения. Красивый благоустроенный двор. Помещение расположено на 1 этаже.
- Охраняемая территория. Видеонаблюдение.
- Второй уровень с окнами и потолками 3,7м (антресоль), на который ведет бетонная лестница, имеет площадь 58 м2.
- Первый уровень с потолками 7м имеет площадь 208 м2.
- Общая площадь: 266 м2.
Все центральные коммуникации соответствуют уровню современного здания бизнес- класса. В наличии схемы по отоплению, водоснабжению, канализации, электроснабжению и вентиляции (приточно-вытяжной и противодымной).
- Отопление: установлены биметаллические радиаторы и подключены с помощью труб REHAU;
- Водоснабжение: горячая и холодная вода 3-4 атм. T=60 градусов. Проектом предусмотрено несколько мокрых точек в том числе: подсобка (помещение уборочного инвентаря) и с/у.
- Канализация: в технологических шахтах;
- Вентиляция: на фасаде в пределах 1 этажа предусмотрены места забора воздуха для приточной вентиляции, а для вытяжной вентиляции предусмотрены воздуховоды на кровлю здания. Можно установить оборудование под потолком (забор воздуха с фасада со стороны входа) 3 300 м3/час, выброс воздуха на кровлю или внутренний двор 3220 м3/час.
Система противодымной вентиляции.
- Пожарная сигнализация.
- Электроснабжение: мощность: 53 кВт, 220/380 В (3 фазы) - II категория надежности;
Помещение расположено в Корпусе 2 ЖК Событие, который был сдан в 2022 г. и все квартиры в нем уже раскуплены. Большинство жильцов уже закончили ремонты и заселились.
ЖК СОБЫТИЕ премиальный квартал в престижном районе Раменки в 10 минутах от Воробьёвых гор.
Все дома имеют стильные фасады, красивые и безопасные дворы без машин, охраняемую территорию. Большая подземная и гостевая парковка. Рядом: парк 24 га, спортивные, прогулочные пространства, природная зона у реки.
Это удачное место для размещения бизнеса, так как богатая инфраструктура привлекает большое количество жильцов, ценящих комфорт и престижность. Рядом расположены и другие солидные жилые комплексы.
В 10 мин. пешком ст. метро «Мичуринский пр-кт» и «Аминьевская». Удобные выезды на Пр-кт Вернадского, Мосфильмовскую, дублер Кутузовского пр-кта и Аминьевское ш.; в 10 мин. ТТК и МКАД, в 15 мин. Садовое кольцо.
Оперативный показ! Готовы предоставить более подробную информацию и ответить на ваши вопросы. [#7757591#]



