- Московская область Москва
- Размещено: 16 октября 9:00
104.631.585 руб.

Номер: BLD-987651760594412668
Тел.:
Ближайшее метро | Зорге, 0 метров |
Тип предложения | Продажа |
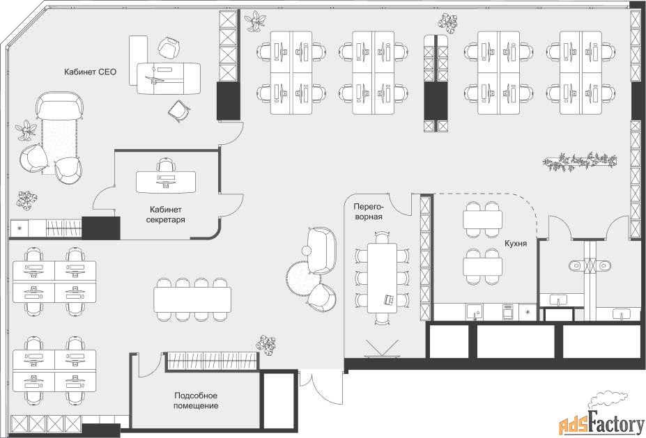
Вид объекта | офисное помещение |
Площадь (м²) | 259.31 |
Офис под чистовую отделку, внутри открытая планировка, одна мокрая точка, тип окон - витринные, окна выходят во двор, общая площадь здания 134839.4 м, год постройки 2028 г.
Вход - общий с улицы, вентиляция - приточная.
Подземная парковка, парковка на 400 машиномест. Инфраструктура: аптека, банкомат, кафе, минимаркет, парк, ресторан, салон красоты, супермаркет, торговая зона, фуд-корт. [#7533567#]