- Ростовская область Батайск
- Размещено: 11 октября 9:00
220.000.000 руб.

Номер: BLD-987651760162413950
Тел.:
Тип предложения | Продажа |
Вид объекта | свободного назначения |
Площадь (м²) | 1780 |
Основная информация:
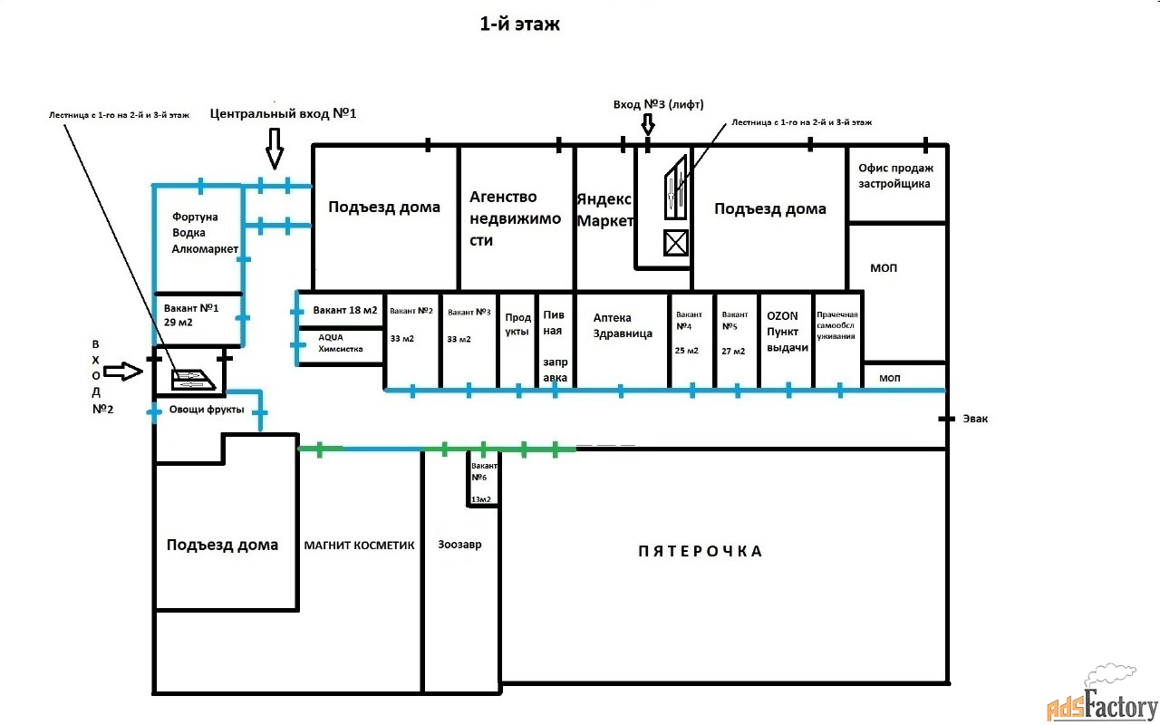
Общая площадь: 1 780,5 м2 (весь первый этаж торгового комплекса)
Адрес: Ростовская область, г. Батайск, ул. Урицкого, 7
Цена: 220 000 000 рублей
Расположение: Центральная часть города, фасад выходит на перекресток ул. Энгельса и ул. Урицкого.
О здании:
Трехэтажный торговый комплекс, входящий в состав МКД (236 квартир).
Продается полностью весь первый этаж.
Высокий автомобильный и пешеходный трафик.
Отличный рекламный обзор и хорошо просматриваемый фасад.
Имеется возможность размещения рекламной вывески.
Несколько входов в торговый комплекс.
Размещена зона разгрузки.
Коммуникации и системы:
Система центрального кондиционирования.
Пожарная сигнализация.
Инвестиционная привлекательность и арендаторы:
Помещение полностью сдается в аренду, что обеспечивает стабильный денежный поток. Возможна продажа с передачей права аренды действующим арендаторам.
Якорные арендаторы:
Пятерочка (магазин у дома)
Магнит Косметик (парфюмерия и косметика)
Фортуна (алкогольная продукция)
Прочие арендаторы:
Аптека низких цен
Химчистка «Аква»
Зоомагазин «Зоозавр»
«Пенная заправка» (разливное пиво)
Пункт выдачи заказов Ozon
Прачечная самообслуживания
Торговые аппараты (вендинг) [#7579558#]