- Ставропольский край Ставрополь
- Размещено: 10 октября 9:00
220.210.000 руб.

Номер: BLD-987651760076010286
Тел.:
Тип предложения | Продажа |
Вид объекта | свободного назначения |
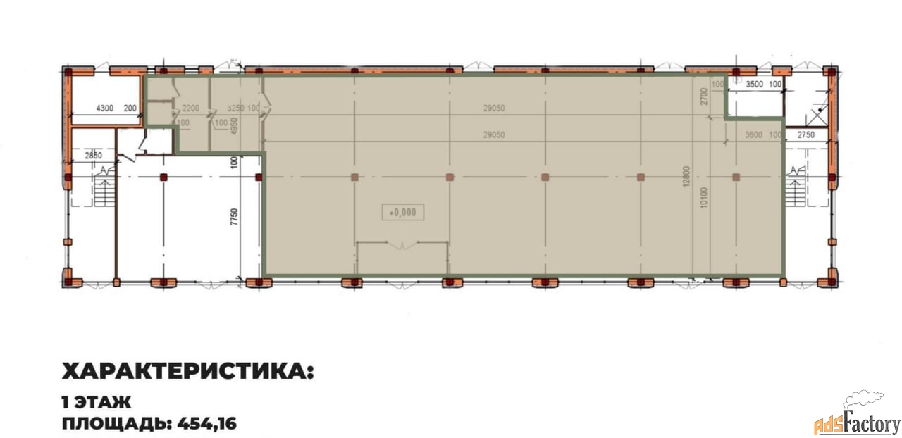
Площадь (м²) | 1159 |
Продается коммерческое двухэтажное здание в юго-западном районе г. Ставрополя, общей площадью 1159 м2. Рядом расположены многоквартирные жилые кварталы, школы. Отличный трафик.
Фасадная часть выполнена из качественных дорогих материалов, современная концепция. Возможна индивидуальная планировка. Имеются все коммуникации, преимущества красная линия, паркинг. Ввод в эксплуатацию IV кв. 2025 года. [#7171741#]