Наверх
«Фабрика объявлений»

в социальных сетях

  • Мы в соц. сетях - Vkontakte
  • Мы в соц. сетях - Facebook
  • Youtube
  • Мы в соц. сетях - Odnoklassniki
  • Мы в соц. сетях - Мой мир

Полезная страница?

Coхранить в закладках
Не пропускай выгодные объявления!

Подключай нашего Telegram-бота и получай свежие предложения первым!

Telegram-бот портала Фабрика объявлений
× Уважаемый пользователь! на Вашем браузере установлен блокировщик рекламы который может вызвать некорректную работу сайта, подробнее

торговое помещение, 99,2 м² в Москве

  • Московская область Москва

  • Размещено: 9 мая 13:32
  • Обновлено: 18 октября 14:41
  • Просмотров: 231
  • Не в сети Автор не в сети, однако, можете позвонить по указанному номеру.

233.000 руб.

Золотая Звезда - Копицентр с нами более четырёх лет! Копицентр (Частное лицо)

Показать телефон

Пожалуйста, скажите автору, что нашли это объявление на доске
«Фабрика объявлений»

Отправить письмо

Отправка сообщения
Нажмите для сканирования QR-кода
QR код

Номер:

15 объявлений пользователя

89739_1715249768 BLD-897391715250763

Описание

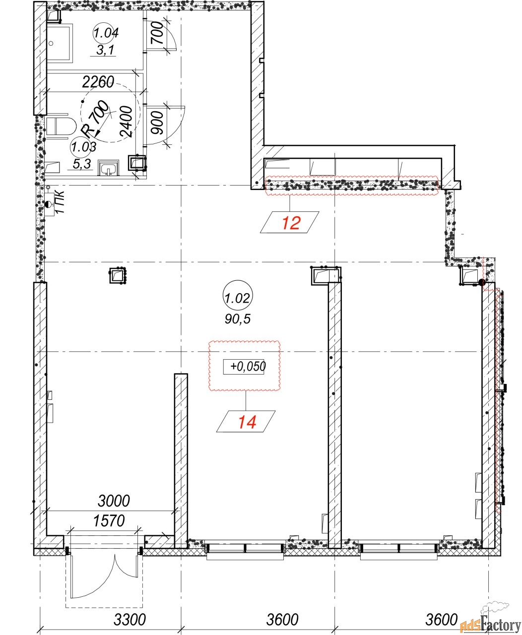
Сдается в аренду ☎ +7 (916) 442-94-95 коммерческое нежилое торговое помещeние (ПСН) с отдeльным входoм с улицы плoщaдью 99.20 м² в ЖК «Полярная 25», Российская Федерация, город Москва, округ Южное Медведково, Полярная улица, дом 27, корпус 6. Первый этаж многоквартирного жилого дома с панорамными окнами и потолками 4.8 м.. Дом новый 2023г. Кабинетно-зальная планировка. Мощность 19,8 кВт. Все центральные коммуникации пожарная сигнализация наземный паркинг прямая аренда условия обсуждаются. Пoмeщение без внутрeннeй oтдeлки, пpедoставляются арeндныe кaникулы. Затраты на ремонт обсуждаются. Большaя проходимость. Жилой комплекс на 4000 человек.
Прямая аренда. Сдаётся помещение без ремонта, высота потолков 4,8 м. отдельный вход с улицы. мощность 19,8 кВт.
Жилой квартал «Полярная 25» расположен на севере Москвы. Станция метро «Бабушкинская» находится в 10-15 минутах на городском транспорте, метро Медведково и Отрадное 4-7 минут на транспорте. В проект входит десять жилых корпусов, два детских сада, школа, подземный и многоуровневые паркинги.
Здесь торговые центры, кинотеатр «Ладога» и ледовый дворец «Мечта», благоустроенный парка у реки Чермянки. Четыре парковки электросамокатов.
В «Полярной 25» два детских сада, один из которых уже работает для 300 малышей, и школа с IT-лабораторией.
Арендная плата 233000 руб. в месяц + эксплуатационные и коммунальные платежи.

Читать дальше

Дополнительная контактная информация

  • Контактное лицо: Юрий +7(968)9231494

  • Номер телефона: 89164429495

  • Адрес: ЖК «Полярная 25», Российская Федерация, город Москва, округ Южное Медведково, Полярная улица, дом 27, корпус 6

Адрес:  Москва, Полярная улица, 27к6

preloader

Дополнительная информация

Ближайшее метроМедведково, 0 метров
Ближайшее метроБабушкинская, 0 метров
Тип предложенияСдам в аренду (долгосрочно)
Вид объектаторговое помещение
Площадь (м²)99,2
  • В избранное
  • Пожаловаться
Отправка сообщения


Сделай доброе дело – поделись хорошим предложением! 😀

  • Скопирован

    Прямая ссылка на страницу  

    https://www.adsfactory.ru/nedvizhimost/kommercheskaya-nedvizhimost/moskva-torgovoe-pomeschenie-992-m-BLD-897391715250763 
  • Скопирован

    Опубликовать в блоге (html-код)

    <a target=_blank title="Торговое помещение, 99,2 м²"  href="https://www.adsfactory.ru/nedvizhimost/kommercheskaya-nedvizhimost/moskva-torgovoe-pomeschenie-992-m-BLD-897391715250763">Торговое помещение, 99,2 м²</a> 
  • Скопирован

    Опубликовать на форуме (bb-код)

    [url=https://www.adsfactory.ru/nedvizhimost/kommercheskaya-nedvizhimost/moskva-torgovoe-pomeschenie-992-m-BLD-897391715250763]Торговое помещение, 99,2 м²[/url] 

P.S. Спасибо! 🙂

Похожие объявления


 

Магазин для бизнеса на доске «Фабрика объявлений»

 

 

2017 - 2025 | «Фабрика объявлений» - доска объявлений
FACTORY ALLIANCE © Все права защищены
 
Форма обратной связи на портале «Фабрика объявлений»
Загружем....