- Московская область Балашиха
- Размещено: 12 января 9:00
16.900.000 руб.
Номер: BLD-987651768197646831
Тел.:
| Тип предложения | Продажа |
| Торг | Нет |
| Вид объекта | дом |
| Число комнат | 4 |
| Этажность здания | 1 |
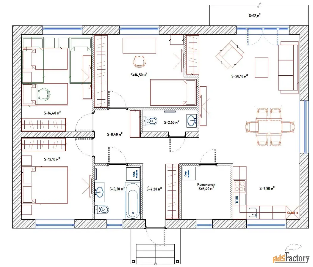
| Общая площадь (кв.м) | 117.6 |
| Жилая площадь (кв.м) | 94.08 |
| Площадь кухни (кв.м) | 10 |
| Площадь участка (сот.) | 6 |
| Год постройки (г.) | 2024 |
| Материал стен | блочный |
| Состояние | дизайнерский |
| Санузел | совмещённый |
| Дополнительные параметры | |
| Электричество | |
| Газ в доме | |
| Отопление | |
| Канализация | |
Отделка White box: В доме установлены межкомнатные стены; выполнена разводка всех коммуникаций; натяжной потолок; оборудована котельная под ключ.
Планировка по проекту:
1 этаж
Просторная кухня-гостиная 36 кв.м с окнами на три стороны света и панорамной дверью на крытую террасу 12 кв.м;
3 изолированные комнаты 12/14/14 кв.м, ванная комната, гостевой с/у, бойлерная, гардеробная.
Высокие потолки - 3 метра.
Под кровлей можно оборудовать дополнительное помещение площадью от 18 до 30 кв.м с высотой до 1,8 м.
Коммуникации в доме: Электричество, магистральный газ, автономная канализация, вода – индивидуальная скважина, отопление от газового котла.
Земельный участок: 6 соток.
Назначение - индивидуальное жилищное строительство (ИЖС), прописка – д. Дятловка, г.о. Балашиха
Вы можете прикрепиться к садику, школе, поликлинике.
Коттедж построен из высококачественных материалов с соблюдением всех технологий:
- Фундамент: Свайный с ростверком (монолитный с армированием) с заглублением 3 м;
- Стены: Газобетонный блок Бонолит, толщина внешних стен 400мм;
- Фасад: Штукатурка, покраска, Цоколь утеплен и облицован термопанелями, выполнена отмостка;
- Кровля: Четырехскатная из метало-черепицы с установкой снегозадержателей и водосточной системы;
- Окна: Металло-пластиковые двухкамерные стеклопакеты с поворотно-откидным механизмом;
- Крыльцо с навесом.
- Терраса с навесом;
- Входная металлическая утепленная дверь;
- Забор - металлический штакетник высотой 2м.
О поселке: Асфальтированные дороги. Общее освещение. Закрытая территория. В поселке оборудована детско-спортивная площадка с воркаутом и зоной отдыха.
Чистый и свежий воздух, тишина и уединение с природой и при этом оптимальное расстояние до города - всего 3 км от мкр. Железнодорожный и 17 км от МКАД. Ближайшие станции метро: Новокосино, Железнодорожная, Некрасовка.
Инфраструктура:
Все поблизости: Детский сад, школа, амбулатория, парк, банк, почта, спортивный комплекс с плавательным бассейном в Агрогородке - 10 мин на авто/автобусе. В д.Дятловка расположена остановка школьного автобуса, где утром забирает, а после уроков привозит ребят школьный автобус. В шаговой доступности Вкус Вилл, Пятерочка, пункты Яндекс/Озон/Валдбериз, аптека и тд.
ТЦ, рестораны, кафе, магазины и другая социально-бытовая инфраструктура расположена в городе Железнодорожном - 15 минут на авто.
Как добраться:
От коттеджного поселка до остановки автобуса 10 минут пешком. Автобус №26 идет до ж/д станции «Черное»- 10 минут, до ж/д станции «Железнодорожная» - 20 минут.
Открыт участок автомобильной трассы М12 Москва-Ногинск, легкое метро МЦД-4 (от Апрелевки до Железнодорожного).
Продажа от застройщика. Семейная и IT ипотека - 6%. Вся стоимость в договор. Одобрение ипотеки и сопровождение сделки - бесплатно. Индивидуальная рассрочка до 12 месяцев.
Добро пожаловать! [#7940070#]



