- Ямало-Ненецкий АО Новый Уренгой
- Размещено: 22 октября 9:06
11.291.000 руб.

Номер: BLD-11887917611131761103
Тел.:
Тип предложения | Продажа |
Тип продажи | свободная продажа |
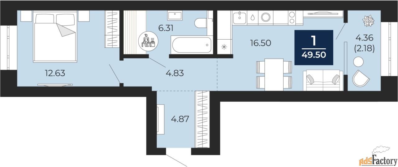
Число комнат | 1 |
Этаж | 9 |
Этажность здания | 12 |
Общая площадь (кв.м) | 47.32 |
Жилая площадь (кв.м) | 12.63 |
Площадь кухни (кв.м) | 16.5 |
Срок сдачи (г.) | 2026 |
Высота потолков (м.) | 2.7 |
Состояние | предчистовая |
Дополнительные параметры | |
Балкон или лоджия | |
Центральное водоснабжение |
Дом монолитный, многоподъездный, переменной этажности, от 8 до 12 этажей. Квартира находится в 4-й секции высотой 12 этажей в корпусе ГП-83. На этаже 6 квартир. В подъезде 1 пассажирский и 1 грузовой лифт. Начало строительства - 4 квартал 2023 года. Окончание строительства - 3 квартал 2026 года. Оформление сделки по договору долевого участия.
Квартал будет расположен в микрорайоне Славянский на пересечении улиц Мира и 70-летия Октября. Престижный район, собственный парк, вся необходимая для жизни, учёбы и работы инфраструктура — новая школа с бассейном и кванториумом, новый детский сад, поликлиника, спорткомплекс, магазины и др.
Чтобы в квартирах было как можно больше свободного пространства, мы предусмотрели индивидуальные кладовые на цокольном этаже.
Оставляйте коляски и сезонный спортинвентарь после прогулок здесь — удобно для вас и чисто для квартиры.
В подземный паркинг можно спуститься на лифте прямо с квартирной площадки. (AQID02484239)