- Тюменская область Тюмень
- Размещено: 18 октября 9:06
17.000.000 руб.

Номер: BLD-11887917607675741163
Тел.:
Тип предложения | Продажа |
Тип продажи | свободная продажа |
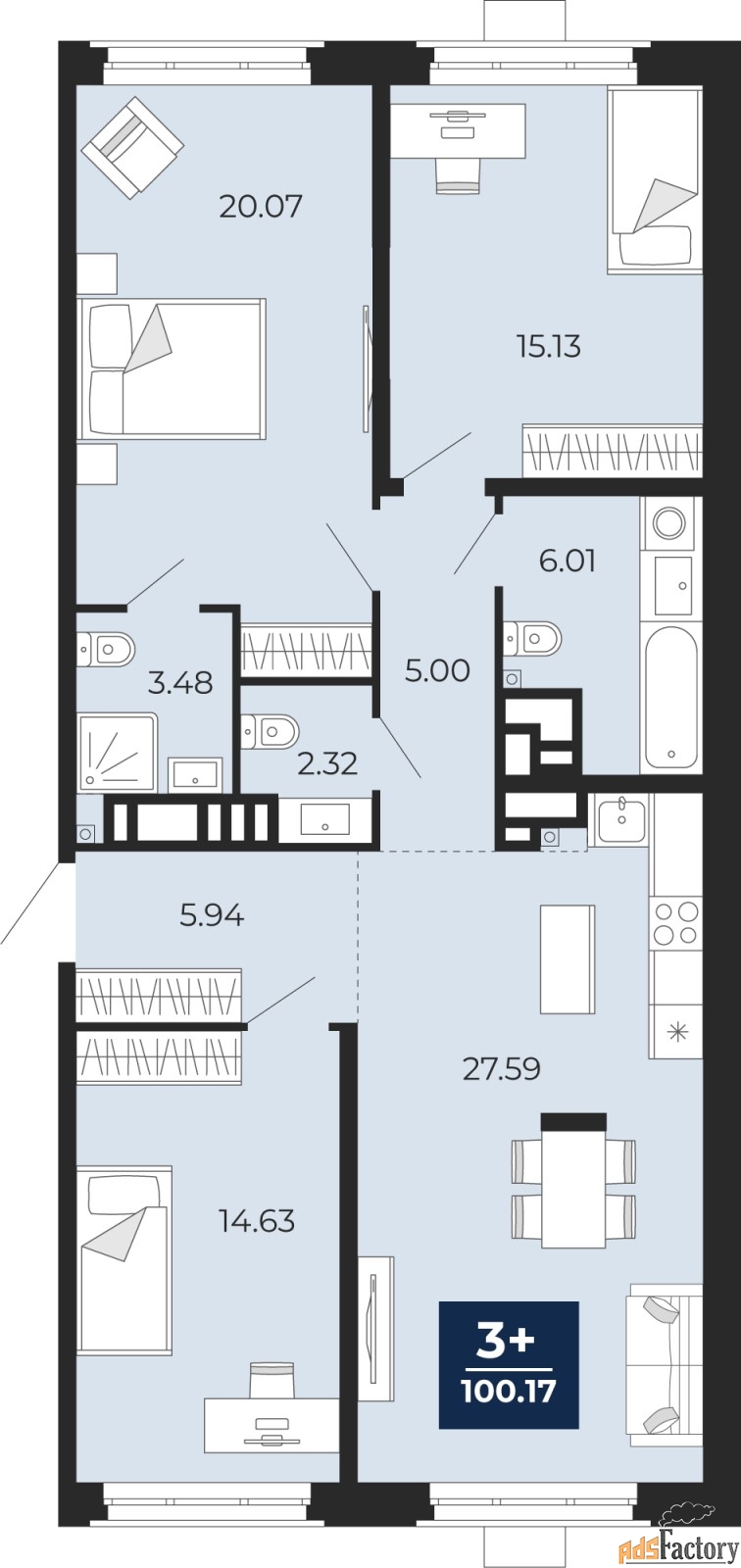
Число комнат | 3 |
Этаж | 2 |
Этажность здания | 18 |
Общая площадь (кв.м) | 105.41 |
Жилая площадь (кв.м) | 40 |
Площадь кухни (кв.м) | 10 |
Срок сдачи (г.) | 2028 |
Высота потолков (м.) | 2.7 |
Состояние | предчистовая |
Дополнительные параметры | |
Центральное водоснабжение | |
Парковка |
Дом монолитный, многоподъездный, переменной этажности, от 8 до 24 этажей. Квартира находится во 2-й секции высотой 18 этажей в корпусе ГП-12. На этаже 6 квартир. В подъезде 1 пассажирский и 1 грузовой лифт. Окончание строительства - 4 квартал 2028 года. Оформление сделки по договору долевого участия.
Новый жилой район располагается в живописном месте на берегу Туры в центральной части города. Принципиально новое пространство для жизни в центре современного города для тех, чьи мечты сбываются, кто нацелен на постоянный рост, перемены к лучшему для себя и своих близких.
Каждая деталь Айвазовский City вдохновляет и заряжает на новые свершения: авторская архитектура, сбалансированная продуманная инфраструктура, дизайнерские дворы со спортивными и детскими площадками, парковые зоны с фонтанами, водный канал, украшающий центральный прогулочный маршрут района и многое другое. В 2019 года проект стал лауреатом престижной премии Urban Awards 2019 в номинации «Лучший строящийся региональный жилой комплекс бизнес-класса».
Главная особенность Айвазовский City - соседство разных архитектурных школ в рамках одного дома. Изысканная классика, выразительная эклектика и оригинальный модерн - жить в одном из таких домов настоящий повод для гордости.
Айвазовский City это идеальное сочетание комфорта, технологий и развитой инфраструктуры.
Вход в подъезд возможен с улицы и со двора. Отправляясь на работу или за покупками, жители могут выйти с внешней стороны дома, а для прогулки с ребенком – со стороны двора.
Экологически чистые материалы и энергосберегающие технологии, качественное освещение общественных зон, видеонаблюдение по всей территории жилого района (в том числе в подъездах, лифтах и в подземном паркинге), закрытые дворы с доступом только для жителей Айвазовский City.
Часть домов в Айвазовский City будут оснащены подземным паркингом. Востребованный в нашем климатическом поясе формат хранения автомобилей защитит собственность владельца в любое время года.
Аккредитация в банках: ОАО «Альфа-Банк», «Сбербанк России», ПАО Банк «ВТБ», ПАО «Газпромбанк», ПАО «Совкомбанк» и других. (AQID02521096)