- Московская область деревня Прокшино
- Размещено: 22 октября 9:03
9.595.464 руб.

Номер: BLD-11057417611130334031
Тел.:
Тип предложения | Продажа |
Тип продажи | свободная продажа |
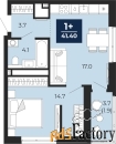
Число комнат | 1 |
Этаж | 3 |
Этажность здания | 19 |
Общая площадь (кв.м) | 21.4 |
Жилая площадь (кв.м) | 7.7 |
Площадь кухни (кв.м) | 10 |
Срок сдачи (г.) | 2026 |
Высота потолков (м.) | 2.8 |
Состояние | предчистовая |
Дополнительные параметры | |
Балкон или лоджия | |
Охрана здания | |
Центральное водоснабжение | |
Парковка |
Эта квартира будет сдана с предчистовой отделкой white box – это квартира с ровными белыми стенами. Такая отделка позволяет сразу приступить к чистовой отделке: выбрать цвета и материалы для стен и полов, купить и расставить мебель и оборудование, развесить светильники и подобрать декор.
Квартира находится в корпусе 11.1.2. Дом монолитный, одноподъездный, высотой 19 этажей. На этаже 6 квартир. В подъезде 1 пассажирский и 1 грузовой лифт. Начало строительства - 3 квартал 2023 года. Окончание строительства - 1 квартал 2026 года. Оформление сделки по договору долевого участия.
Артикул квартиры по базе застройщика 58К-11.1.2-196.
В шаговой доступности от жилого комплекса расположены станции метро (расстояние по прямой): «Филатов луг» (1.4 км), «Прокшино» (1.7 км), также недалеко от этого корпуса расположены станции метро: «Саларьево», «Румянцево», «Теплый стан».
ПРЕДЛОЖЕНИЯ ОТ ЗАСТРОЙЩИКА В ОКТЯБРЕ 2025:
Ипотека от 13,9 % для всех! На весь срок.
«Семейная ипотека» вернулась. Ставка от 3,5 % на весь срок! Без удорожания!
Выгодное ипотечное комбо: Ипотека от 2200 р./мес. и от 6 % после рождения ребёнка!
Ипотека для всех «Держи пять!» - ставка 5 % на 2 года!
*более подробную информацию по скидкам и акциям уточняйте в отделе продаж
ЖК «Прокшино» расположен в 7,6 км от МКАД в Новой Москве. В 8 минутах пешком находится станция метро «Прокшино» быстрой и комфортной красной линии метро. Высокую транспортную доступность обеспечивают и два крупных шоссе, до которых легко доехать за 5 минут по новой скоростной автотрассе Солнцево – Бутово – Варшавское шоссе. Жилой комплекс «Прокшино» входит в кластер Прокшино. В районе появятся дома комфорт и бизнес-класса с подземным паркингом, закрытыми благоустроенными дворами без машин, местами для активного и созерцательного отдыха, магазинами, бытовыми сервисами и другими коммерческими объектами. Рядом пруд с собственной набережной и городской парк «Хованская дубрава». Для маленьких жителей построят детские сады, образовательный комплекс. (AQID02515960)