- Ставропольский край Ставрополь
- Размещено: 29 декабря 9:00
425.481.802 руб.
Номер: BLD-987651766988012910
Тел.:
| Тип предложения | Продажа |
| Вид объекта | свободного назначения |
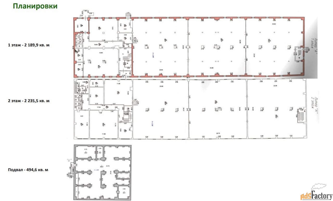
| Площадь (м²) | 4920 |
Реализация посредством проведения торгов на электронной площадке Сбербанк-АСТ.
Номер процедуры: SBR065-2512250007
Собственник: Юго-Западный Банк ПАО Сбербанк
О лоте:
Нежилое помещение общей площадью 4920 м2
Этаж: 1
Дополнительная информация, документы и условия реализации указаны на площадке в разделе «Документы». По всем вопросам, связанным с лотом, обращайтесь в рабочее время по телефону с 09:00 до 18:00 по МСК. [#7938177#]



