- Ставропольский край Ставрополь
- Размещено: 12 декабря 9:00
572.640.000 руб.
Номер: BLD-987651765519210187
Тел.:
| Тип предложения | Продажа |
| Вид объекта | свободного назначения |
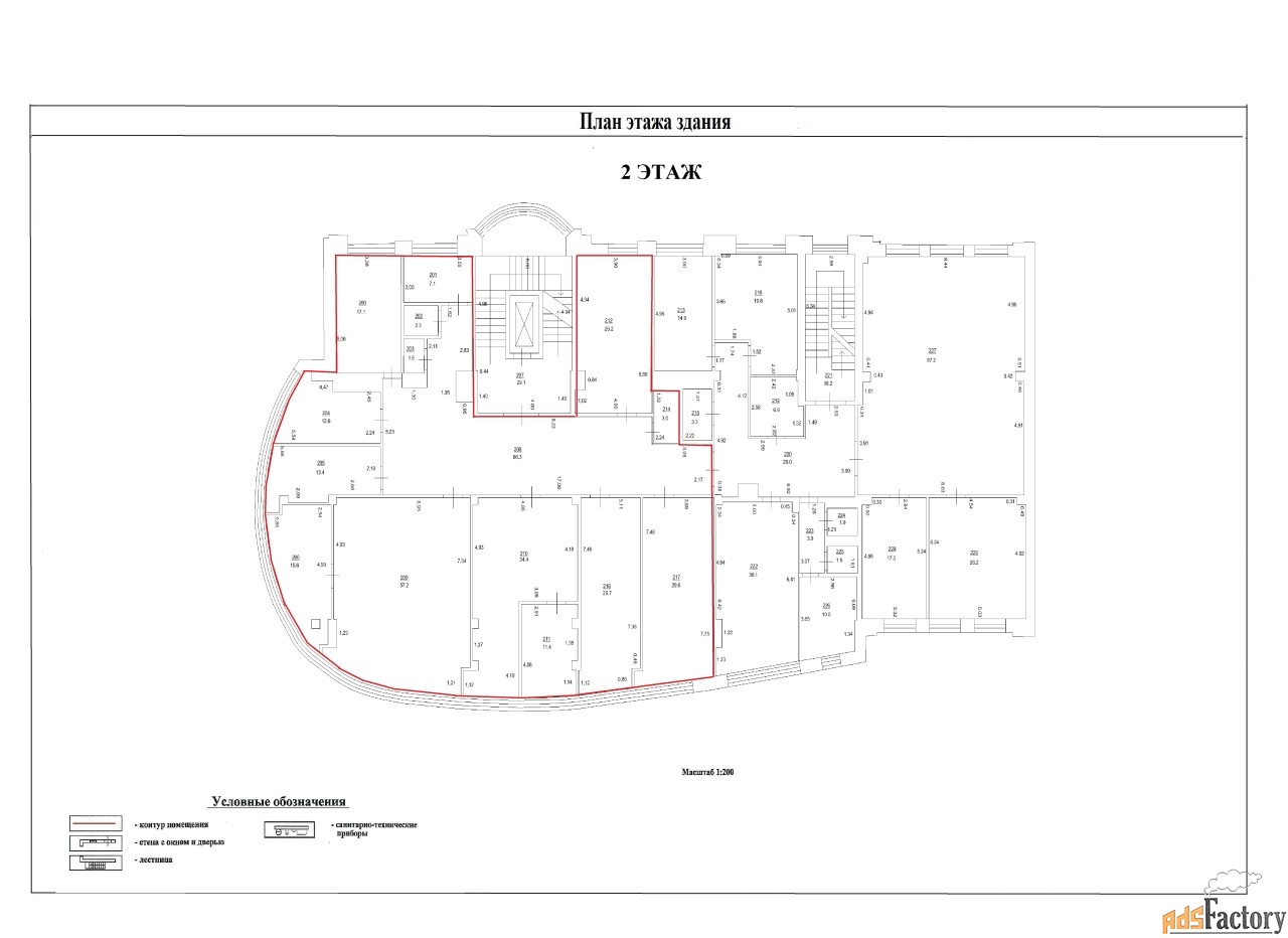
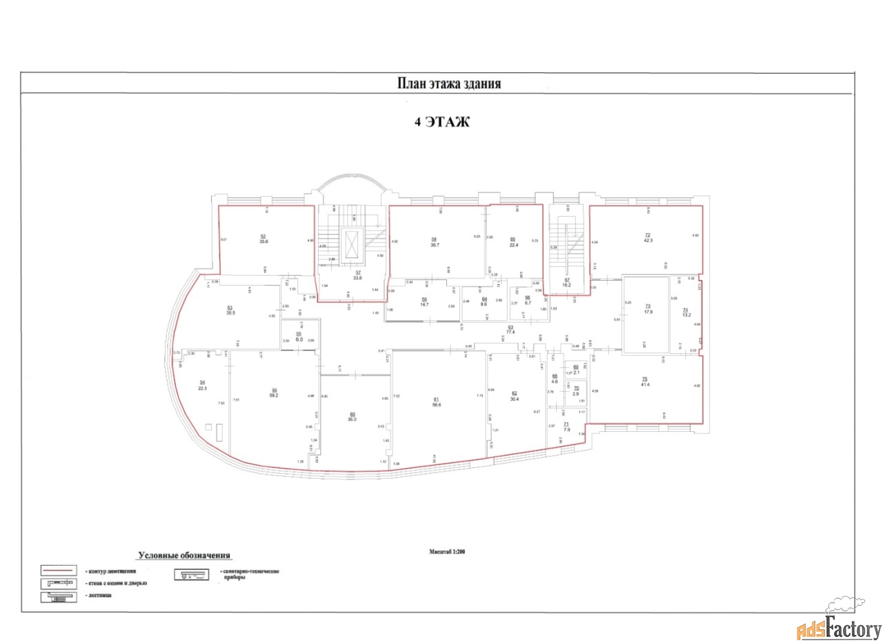
| Площадь (м²) | 2863.2 |
Объект располагается на участке 0.1 га, год постройки 2021 г., участок находится в аренде, здание полностью функционирует, удобное расположение на первой линии домов.
В здании: центральное кондиционирование, вентиляция - приточная, центральное отопление, пожарная сигнализация, есть водоснабжение.
Лифтов в здании 1.
Парковка автомобилей - наземная, парковка на 10 машиномест. Подробности по телефону. Прямая продажа от собственника. [#7133303#]



