- Ленинградская область Санкт-Петербург
- Размещено: 30 сентября 9:00
330.000.000 руб.

Номер: BLD-987651759212011246
Тел.:
Ближайшее метро | Черная речка, 0 метров |
Тип предложения | Продажа |
Вид объекта | свободного назначения |
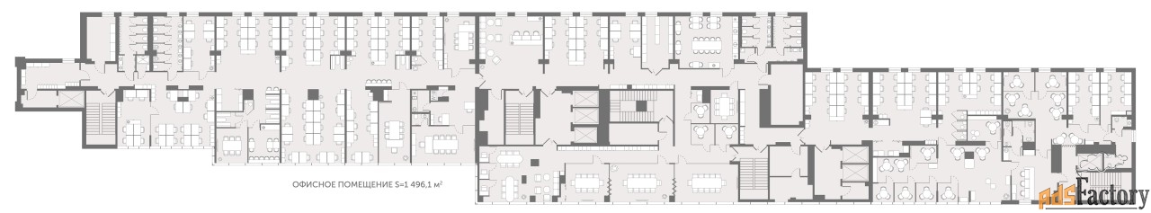
Площадь (м²) | 1496.1 |
Идеальное расположение для офиса в новом трендовом центре Петербурга в шаговой доступности от метро «Черная речка» (7 мин.).
Продажа помещения с гарантированным арендатором на срок 10 лет, что обеспечивает стабильный доход и скорость окупаемости. Согласно оценке независимой компании IPG Estate, срок возврата инвестиций составляет 7-8 лет.
Дизайнерская отделка и современные инженерные системы. Собственная система вентиляции и кондиционирования.
Панорамные окно с видом на Черную речку и благоустроенную набережную.
Оптимальная схема размещения офиса на одном этаже с эргономичным зонированием.
Несколько входов (включая отдельный собственный и через рецепш отеля).
Переговорные залы-трансформеры с возможностью разделения на 3 отдельных или в единое помещение. Лаунж-зоны. Зоны рецепшн.
Офис организован по принципу опен-спейса.
Вся необходимая инфраструктура для персонала: кухня и столовая, санузлы, гардеробные.
Общая площадь: 1 496,1 м2
Высота потолков: 2,6 метра.
Электроэнергия: 157 кВт. [#7151674#]