- Ленинградская область Санкт-Петербург
- Размещено: 16 сентября 9:00
- Обновлено: 27 октября 6:10
372.400 руб.
Номер: BLD-987651758002410302
Тел.:
| Ближайшее метро | Звездная, 0 метров |
| Тип предложения | Сдам в аренду (долгосрочно) |
| Вид объекта | офисное помещение |
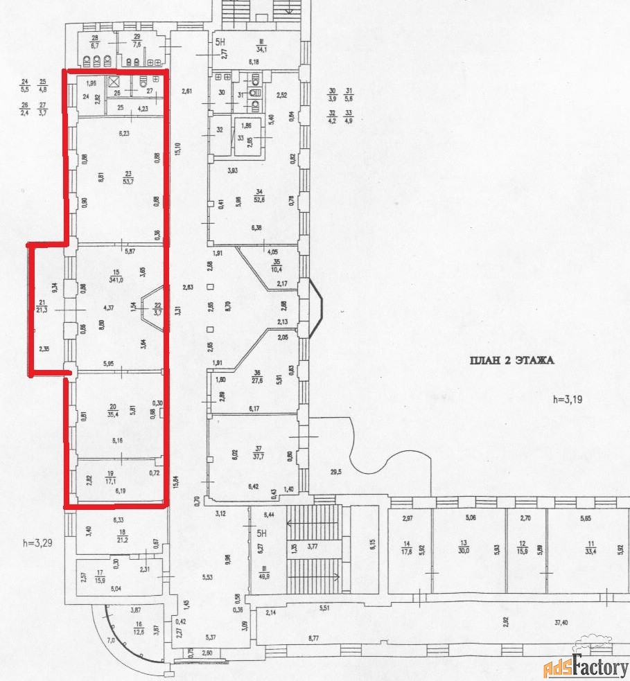
| Площадь (м²) | 196 |
Офис расположен в центре «Глория», общая площадь здания 5284 м2, участок находится в собственности, доступ в здание осуществляется по пропускам, в офисе центральное кондиционирование, вентиляция офиса - приточная, автономное отопление, пожарная сигнализация.
Парковка автомобилей - наземная, парковка на 100 машиномест, из них 20 предоставляются в пользование, парковка охраняемая, на парковке есть гостевые места. [#7296029#]



