- Ленинградская область Санкт-Петербург
- Размещено: 6 ноября 9:00
- Обновлено: 17 декабря 6:10
53.759.506 руб.
Номер: BLD-98765176240880960
Тел.:
| Ближайшее метро | Улица Дыбенко, 0 метров |
| Тип предложения | Продажа |
| Вид объекта | свободного назначения |
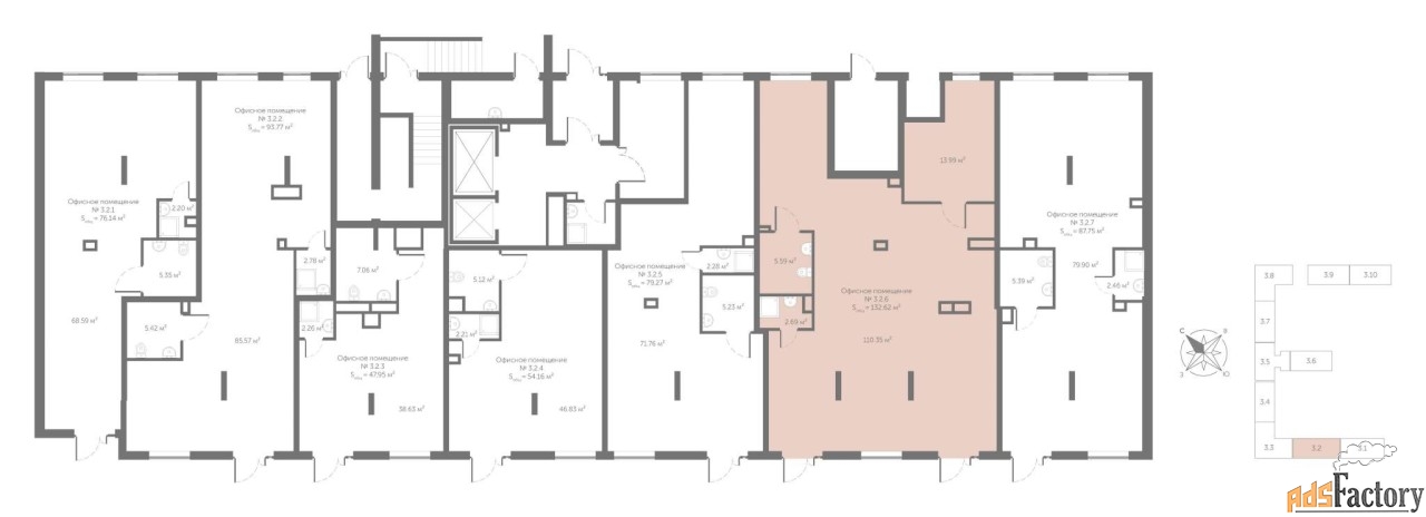
| Площадь (м²) | 132.62 |
«Zoom на Неве» расположен на берегу Невы в непосредственной близости от центра города. Комплекс состоит на 1 700 апартаментов. Локация, масштаб объекта и тип недвижимости - слагаемые высокой потребительской активности среди жителей и гостей комплекса. [#6864119#]



