- Московская область Орехово-Зуево
- Размещено: 1 октября 9:00
8.784.000 руб.

Номер: BLD-987651759298419728
Тел.:
Тип предложения | Продажа |
Вид объекта | свободного назначения |
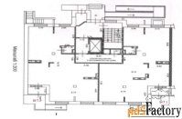
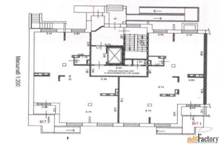
Площадь (м²) | 109.8 |
Продажа от Застройщика. Помещение имеет отдельный вход. Удобная транспортная доступность. Первый этаж. Вся современная инженерия. Высота потолков 4 метра. Электрическая мощность 0,2 кВт на м2. Состояние помещений - под отделку. [#7533368#]