- Московская область Москва
- Размещено: 18 декабря 9:00
24.999.936 руб.
Номер: BLD-987651766037620908
Тел.:
| Ближайшее метро | Ясенево, 0 метров |
| Тип предложения | Продажа |
| Вид объекта | свободного назначения |
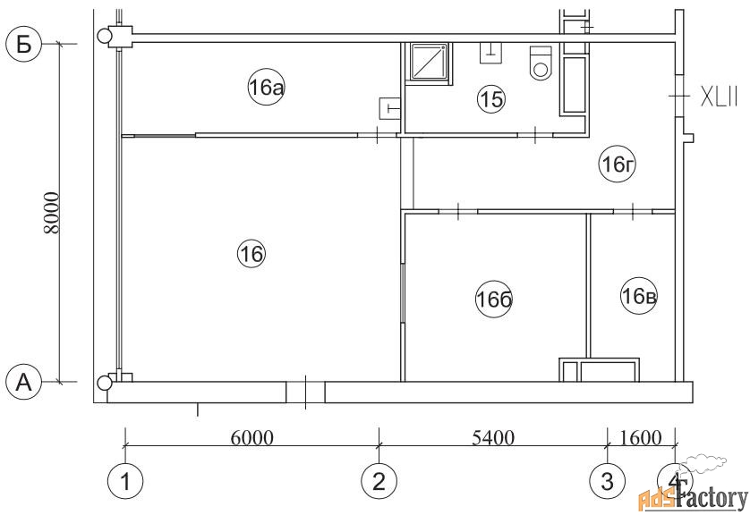
| Площадь (м²) | 96 |
Адрес: Новоясеневский бульвар, д. 9
Площадь: 96 кв.м
Этаж: 9
Современное просторное пространство с высокими потолками.
Возможные варианты использования: офис, представительство, коворкинг, учебный центр или шоурум (при соответствующей адаптации), апартаменты.
Идеальное решение для компаний и людей ценящих индивидуальность, комфорт, статус и функциональность.
Наличие больших окон наполняет пространство естественным светом и открывает красивые виды.
2 минуты хoдьбы от метро Ясенево.
Удобная транспортная доступность.
Зелёный и престижный район с благоприятной экологической обстановкой. Окружен Ясеневским, Голубинским лесопарками и Битцевским лесом. Развитая деловая инфраструктура в целом. Рядом расположены торговые центры, сетевые магазины, кафе, рестораны, иные объекты сервиса и многое другое.
Дом с огороженной территорией, круглосуточной охраной, подземным паркингом и зоной ресепшн на входе. В доме размещен фитнес-клуб премиум класса Еnсоrе с плавательным бассейном и зоной SРА.
Возможен вариант покупки с использованием рассрочки! [#7909615#]



