- Московская область Москва
- Размещено: 1 октября 9:00
658.000 руб.

Номер: BLD-987651759298418602
Тел.:
Ближайшее метро | Шелепиха, 0 метров |
Тип предложения | Сдам в аренду (долгосрочно) |
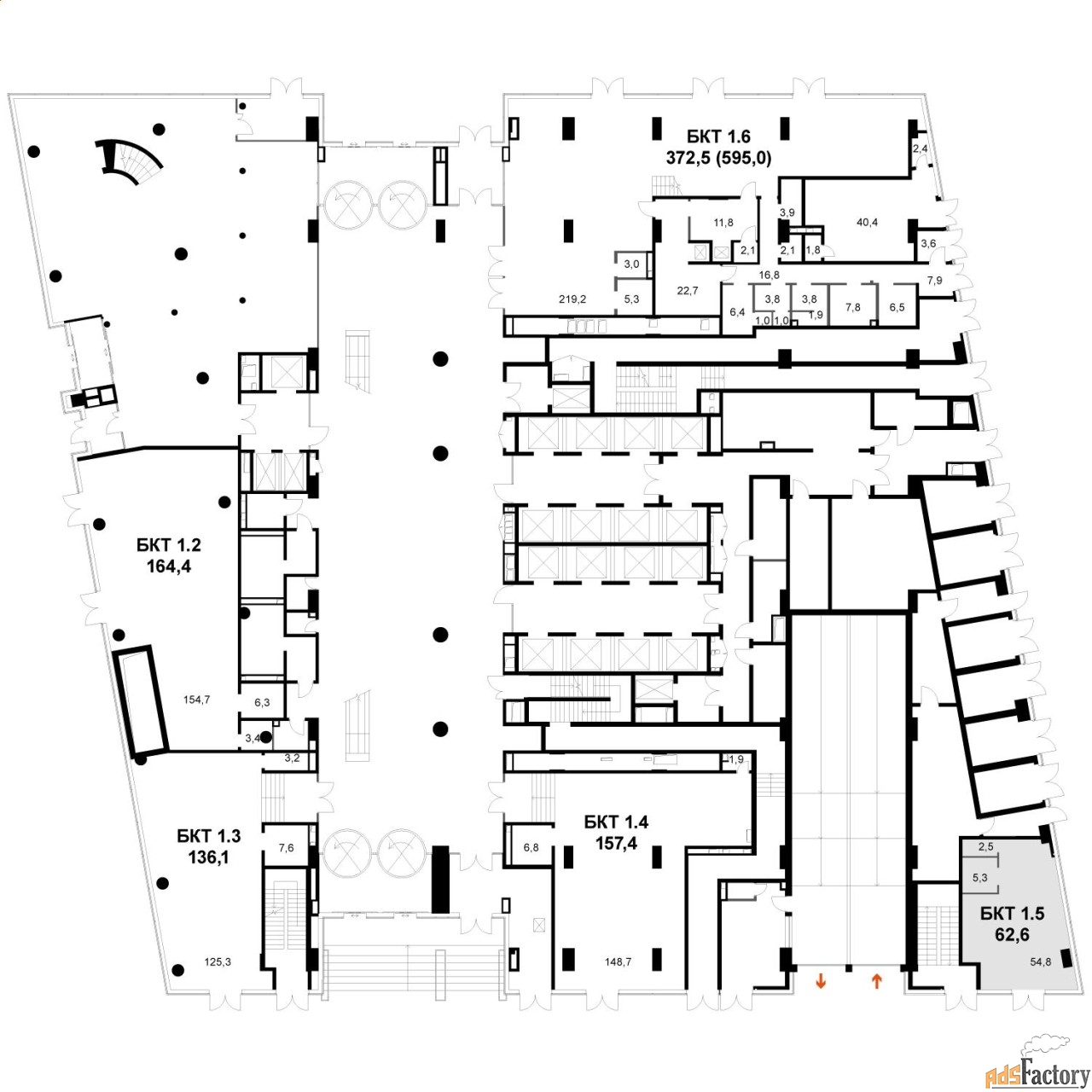
Вид объекта | свободного назначения |
Площадь (м²) | 62.6 |
В Sydney City - новом бизнес-центре класса «А» в сердце Большого Сити - открылся набор площадей свободного назначения с панорамным остеклением, высокими потолками и гибкими условиями аренды.
Адрес: ул. Шеногина, земельный участок 2/11
Арендные каникулы - есть!
Состояние: без отделки (shell&core) - создайте пространство под свой бренд
Высота потолков: от 3,8 до 4,65 м
Панорамные витрины в пол
1 или 2 отдельных входа
Инженерия БЦ:
Энерговооруженность - 100 Вт/м2
Воздухообмен - 60 м/ч
Система кондиционирования - чиллер/фанкойл
Современные системы пожаротушения, оповещения и безопасности
Автоматизация и диспетчеризация всех инженерных систем
Шаг колонн: 8,4 8,4 м
5 лифтовых групп (в том числе 17 грузопассажирских лифтов)
Просторная входная группа
Транспортная доступность:
Сейчас: 15 минут пешком до метро и МЦК «Шелепиха»
С 2026 года: новая станция «Звенигородская» - всего 1 минута пешком!
Инфраструктура:
24-этажный бизнес-центр находится в центре флагманского проекта премиум-класса от ГК ФСК - Sydney City. Первый жилой квартал в концепции well being в Москве.
На территории в 19,3 га ведется строительство 23 корпусов, переменной этажности 8-44 этажей.
Квартал обладает развитой собственной социальной и коммерческой инфраструктурой, начиная от престижной школы и д/с и заканчивая фудхоллом и развлекательным центром.
Активный пешеходный и деловой трафик.
Условия аренды:
Эксплуатационные и коммунальные платежи оплачиваются отдельно по факту (счета от УК) . Гибкие условия. Прямой договор.
Звоните, чтобы назначить просмотр и обсудить условия! [#7460150#]