- Московская область Москва
- Размещено: 8 октября 9:00
60.000.000 руб.

Номер: BLD-987651759903217824
Тел.:
Ближайшее метро | Сходненская, 0 метров |
Тип предложения | Продажа |
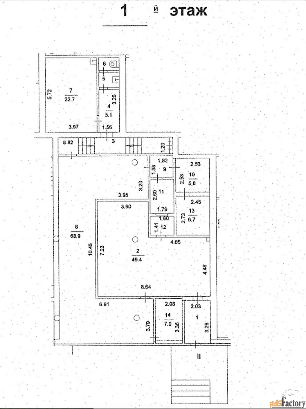
Вид объекта | свободного назначения |
Площадь (м²) | 195.6 |
Реализация посредством проведения торгов на электронной площадке Сбербанк-АСТ.
Номер процедуры: SBR065-2509290010
Собственник: Московский банк ПАО Сбербанк
О лоте:
Нежилое помещение общей площадью 186,7 м2
Этаж: 1/1
Кадастровый номер: 77:08:0003006:6465
Обратная аренда: нет
Особые условия:
На Объекте произведена перепланировка, не согласованная в установленном законом порядке.
Дополнительная информация, документы и условия реализации указаны на площадке в разделе «Документы».
По всем вопросам, связанным с лотом, обращайтесь в рабочее время по телефону с 09:00 до 18:00 по МСК. [#7533796#]