- Московская область Москва
- Размещено: 4 октября 9:00
134.062.500 руб.

Номер: BLD-987651759557615809
Тел.:
Ближайшее метро | Хорошево, 0 метров |
Тип предложения | Сдам в аренду (долгосрочно) |
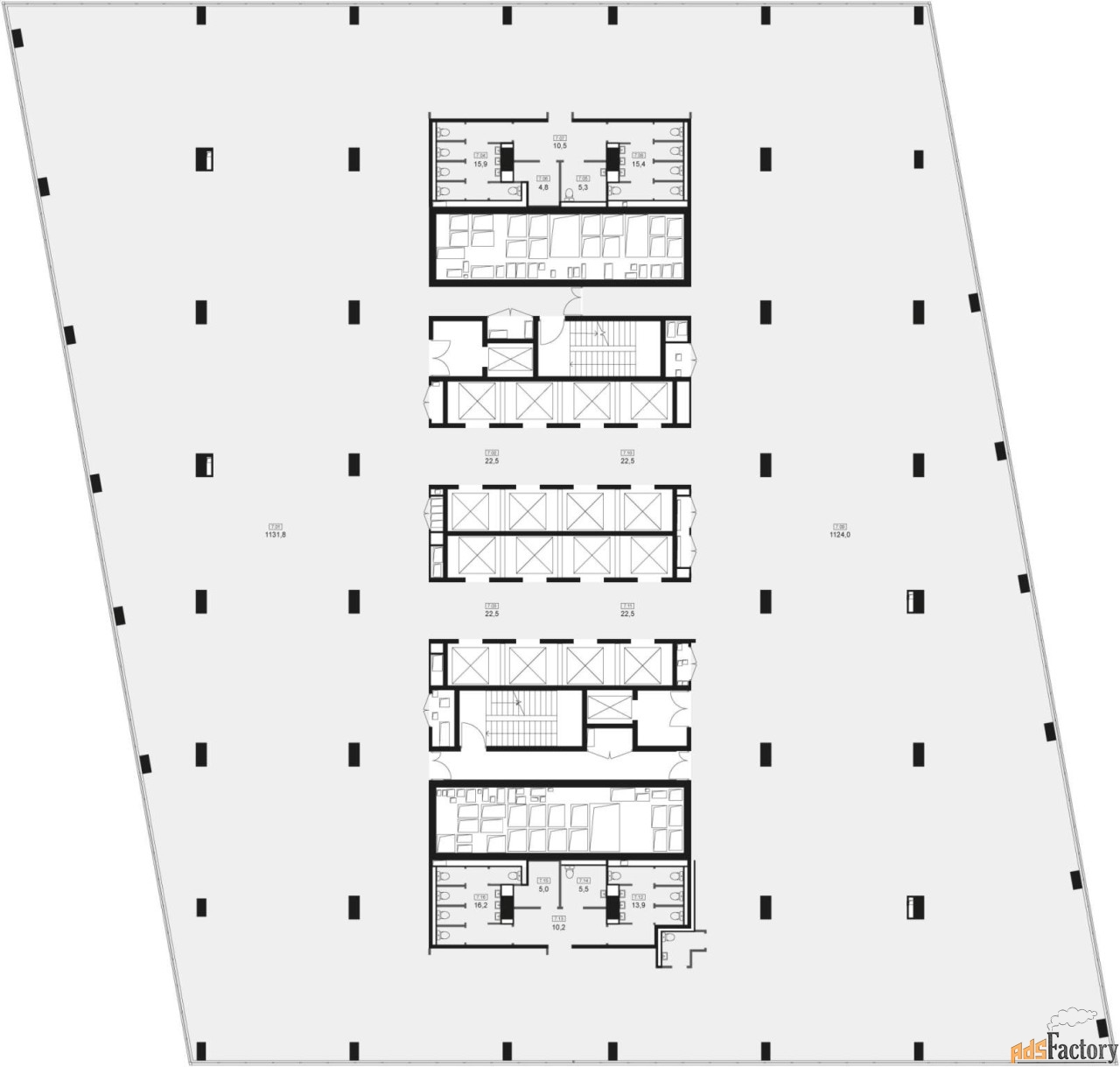
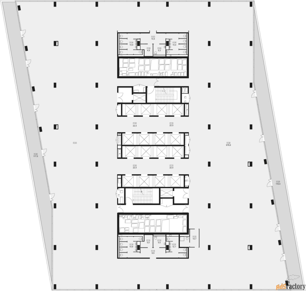
Вид объекта | офисное помещение |
Площадь (м²) | 29250 |
Без отделки, арендные каникулы.
По адресу ул. Шеногина, земельный участок 2/11.
Эксплуатационные и коммунальные платежи оплачиваются отдельно по счетам от УК.
Возможна аренда нескольких этажей от 13 тыс. м2. Подробности уточняйте у менеджера.
БЦ Sydney City располагается центре Большого Сити и Шелепихинской набережной.
Станция метро и МЦК «Шелепиха» находятся в 15-минутной пешей доступности, а с 2026 г. до метро можно будет дойти за 1 минуту, благодаря новой станции «Звенигородская».
Панорамное остекление в пол
Шаг колонн 8,4 х 8,4 м
Отделка - shell&core
Энерговооруженность - 100 Вт/м
5 отдельных лифтовых групп, в т.ч. 17 грузопассажирских лифтов
Эксплуатируемая кровля на 4, 11, 16 этажах в виде террас
Воздухообмен 60 м/час, кондиционирование по схеме чиллер/фанк-ойл
Автоматическая система спринклерного пожаротушения, АПС, СОУЭ, ДУ
Автоматизация и диспетчеризация базовых инженерных систем и ПБ
Просторная входная группа с торговыми помещениями и ресторанами на 1 и 2 этажах
Высота помещений 1-го этажа - до 8 м
ЖК Sydney City - новый проект премиум-класса на Шелепихинской набережной. Первый жилой квартал в концепции well being в Москве.
На территории в 19,3 га ведется строительство 23 корпусов, переменной этажности 8-44 этажей.
Квартал обладает развитой собственной социальной и коммерческой инфраструктурой, начиная от престижной школы и д/с и заканчивая фудхоллом и развлекательным центром. [#7533410#]