- Московская область Люберцы
- Размещено: 31 октября 9:00
- Обновлено: 11 декабря 6:10
59.282.500 руб.
Номер: BLD-987651761890410458
Тел.:
| Тип предложения | Продажа |
| Вид объекта | свободного назначения |
| Площадь (м²) | 263.3 |
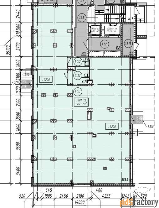
Угловое нежилое помещение № 1.1, корпус 5.1, общей площадью 263,30 м2, первый этаж, 2 входа с улицы. Центральное местоположение, напротив муниципальный ДОО на 560 мест и Школа на 1500 мест. Помещение выходит на первую линию внутриквартального сквозного проезда. Есть стихийная парковка вдоль улицы. Высота потолков 4 м, выделенная мощность - 0,2кВт/ м2, состояние помещения - shell&core. заведены точки подключения к системам вентиляции, гвс/хвс, канализации. В помещении 12 больших витринных окон, предназначено под организацию поликлиники/мед. кабинета, под помещением - тех. этаж+кладовые.
Дом вводится в эксплуатацию в 3 кв. 2024 г.
ЖК сдан, заселен. Жилой комплекс расположен в 5 минутах езды от станций метро \"Некрасовка», МЦД ст. Люберцы-1,2. Общее количеством квартир 4 700 шт. и населением более 8 000 человек.
Целевая продажа - под мед. услуги. Доступна беспроцентная рассрочка на 2 года, все подробности по телефону. [#7533402#]



