- Татарстан Казань
- Размещено: 12 декабря 9:00
1.267.479 руб.
Номер: BLD-987651765519210235
Тел.:
| Тип предложения | Сдам в аренду (долгосрочно) |
| Вид объекта | свободного назначения |
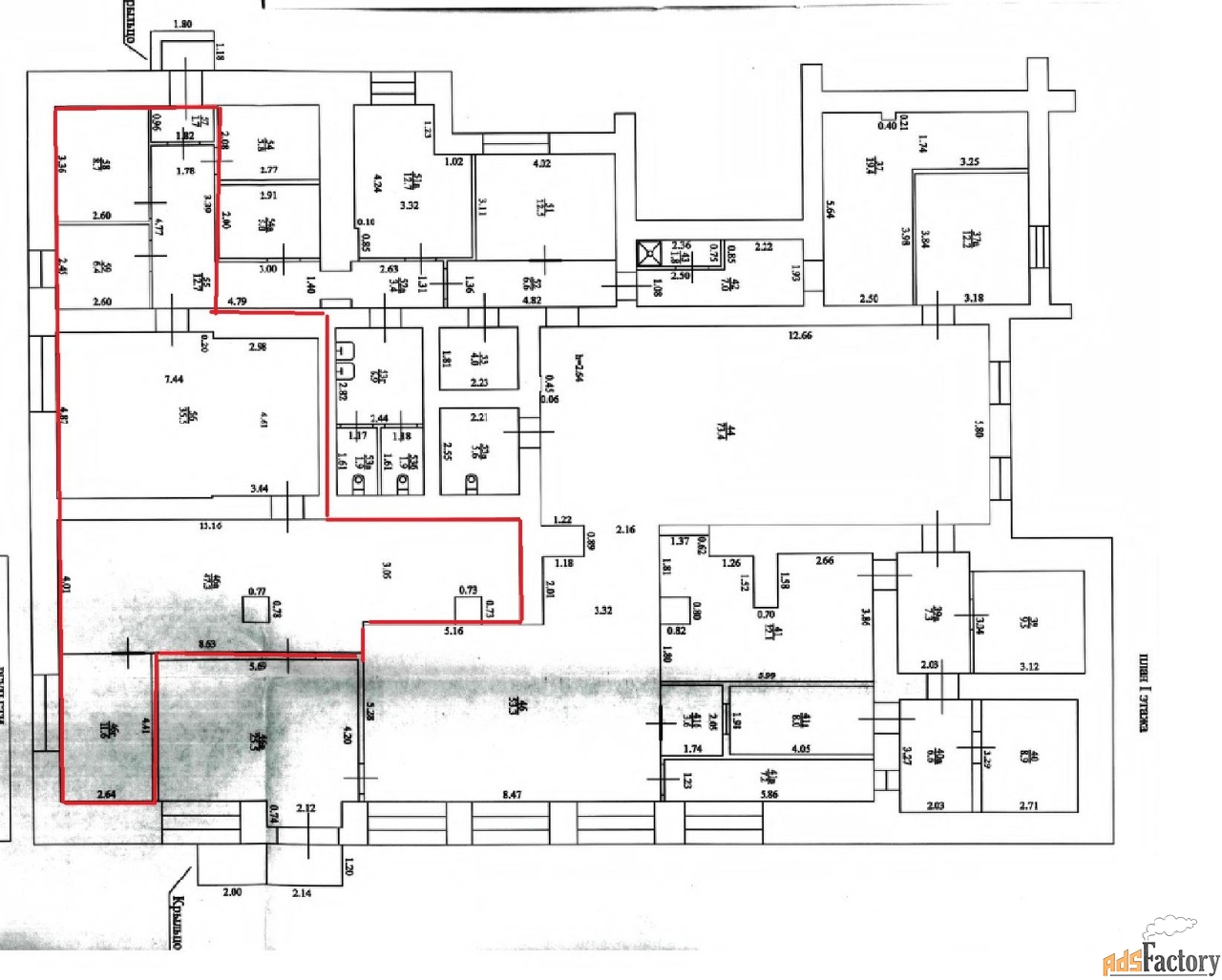
| Площадь (м²) | 119.7 |
Аренда посредством проведения торгов на электронной площадке Сбербанк-АСТ.
Номер процедуры: SBR065-2510210006
Собственник: Волго-Вятский банк ПАО Сбербанк
О лоте:
Нежилое помещение общей площадью 119,7
кв.м.
Этажность: 1/1
Кадастровый номер: 16:50:220538:1026
Срок аренды: 5 лет
Особые условия: Арендатор имеет право передать помещение в субаренду, остальные условия в «Аукционной документации»
Дополнительная информация, документы и условия реализации указаны на площадке в разделе «Документы».
По всем вопросам, связанным с лотом, обращайтесь в рабочее время по телефону с 09: 00 до 18: 00 по МСК. [#7283623#]



