Наверх
«Фабрика объявлений»

в социальных сетях

  • Мы в соц. сетях - Vkontakte
  • Мы в соц. сетях - Facebook
  • Youtube
  • Мы в соц. сетях - Odnoklassniki
  • Мы в соц. сетях - Мой мир

Полезная страница?

Coхранить в закладках
Не пропускай выгодные объявления!

Подключай нашего Telegram-бота и получай свежие предложения первым!

Telegram-бот портала Фабрика объявлений
× Уважаемый пользователь! на Вашем браузере установлен блокировщик рекламы который может вызвать некорректную работу сайта, подробнее

торговое помещение, 1122 м² в Деревне Грибках

  • Московская область деревня Грибки

  • Размещено: 11 февраля 10:14
  • Обновлено: 18 ноября 0:03
  • Просмотров: 29
  • Не в сети Автор не в сети, однако, можете позвонить по указанному номеру.

1.415.000 руб.

Золотая Звезда - Сергей с нами более четырёх лет! Сергей (Частное лицо)

Показать телефон

Пожалуйста, скажите автору, что нашли это объявление на доске
«Фабрика объявлений»

Отправить письмо

Отправка сообщения
Нажмите для сканирования QR-кода
QR код

Номер:

20 объявлений пользователя

94567_1739257174 BLD-945671739258086

Описание

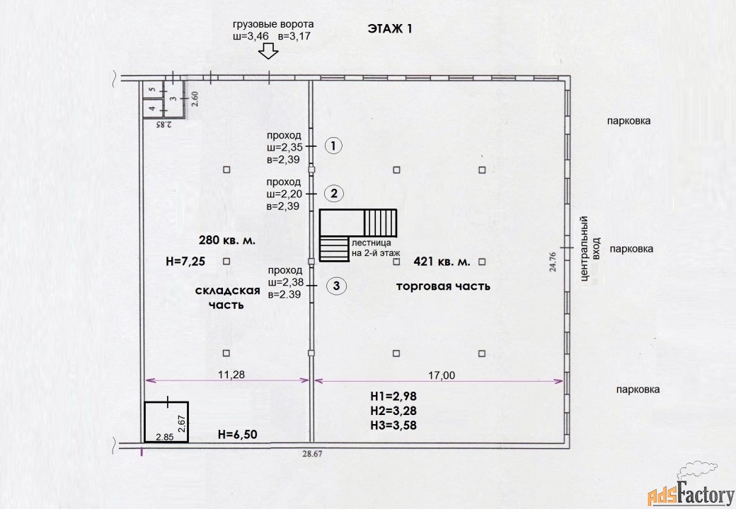
Торгово-складское помещение на первой линии Дмитровского шоссе аренда. Теплое, общая площадь 1122 кв. м. Торговая часть 1-й этаж 421 кв. м. высота 3,0 -3.6 м. Торговая часть 2-й этаж 421 кв. м. высота 2,7 – 3,4 м. Складская часть 280 кв. м., высота 6,5-7,2 м. Центральный вход с первой линии, грузовые проходы для подачи товаров в торговые зоны, бесплатная парковка перед зданием, туалет. Пол плитка, подоконники, стены окрашены, готовность апрель 2025 г. Скидка на аренду помещения с минимальной отделкой.

Читать дальше

Дополнительная контактная информация

  • Контактное лицо: Сергей

  • Номер телефона: +79855001222

  • Адрес: МО, д. Грибки, Дмитровское шоссе стр. 54

Адрес:  Московская область, городской округ Мытищи, деревня Грибки, Дмитровское шоссе, 54

preloader

Дополнительная информация

Тип предложенияСдам в аренду (долгосрочно)
Вид объектаторговое помещение
Площадь (м²)1122
  • В избранное
  • Пожаловаться
Отправка сообщения


Сделай доброе дело – поделись хорошим предложением! 😀

  • Скопирован

    Прямая ссылка на страницу  

    https://www.adsfactory.ru/nedvizhimost/kommercheskaya-nedvizhimost/derevnya-gribki-torgovoe-pomeschenie-1122-m-BLD-945671739258086 
  • Скопирован

    Опубликовать в блоге (html-код)

    <a target=_blank title="Торговое помещение, 1122 м²"  href="https://www.adsfactory.ru/nedvizhimost/kommercheskaya-nedvizhimost/derevnya-gribki-torgovoe-pomeschenie-1122-m-BLD-945671739258086">Торговое помещение, 1122 м²</a> 
  • Скопирован

    Опубликовать на форуме (bb-код)

    [url=https://www.adsfactory.ru/nedvizhimost/kommercheskaya-nedvizhimost/derevnya-gribki-torgovoe-pomeschenie-1122-m-BLD-945671739258086]Торговое помещение, 1122 м²[/url] 

P.S. Спасибо! 🙂

Похожие объявления


 

Магазин для бизнеса на доске «Фабрика объявлений»

 

 

2017 - 2025 | «Фабрика объявлений» - доска объявлений
FACTORY ALLIANCE © Все права защищены
 
Форма обратной связи на портале «Фабрика объявлений»
Загружем....