- Ленинградская область Тосно
- Размещено: 25 декабря 9:00
17.000.000 руб.
Номер: BLD-9876517666424131068
Тел.:
| Тип предложения | Продажа |
| Вид объекта | коттедж |
| Число комнат | 6 |
| Этажность здания | 2 |
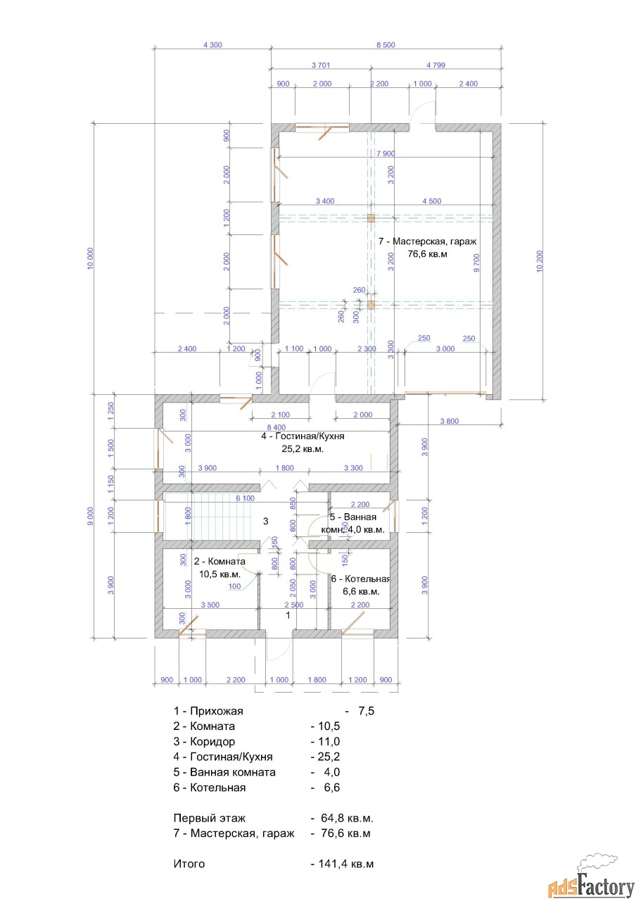
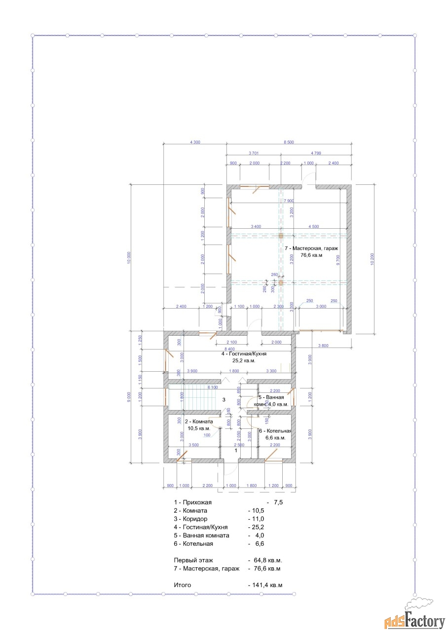
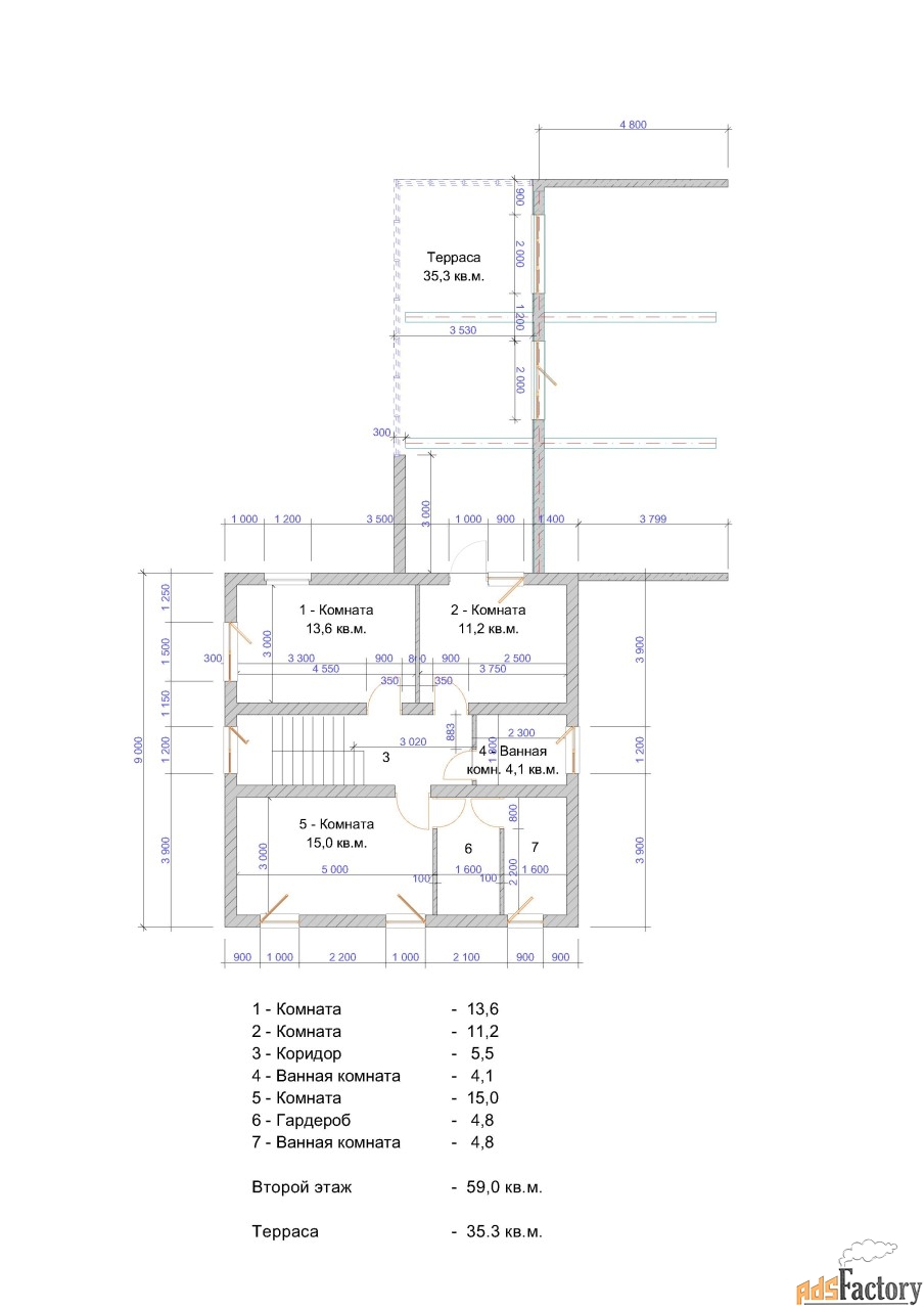
| Общая площадь (кв.м) | 200 |
| Жилая площадь (кв.м) | 160 |
| Площадь кухни (кв.м) | 10 |
| Площадь участка (сот.) | 10 |
| Год постройки (г.) | 2024 |
| Материал стен | блочный |
| Состояние | косметический |
| Дополнительные параметры | |
| Электричество | |
| Газ в доме | |
| Отопление | |
| Интернет | |
| Канализация | |
Дом построен по индивидуальному проекту. Основание дома - бетонная плита, толщиной 250 мм., с трубами тёплого пола. Дом подготовлен для окончательной отделки: стены оштукатурены под обои, на полу стяжка, для укладки ламината или керамической плитки. На каждом этаже по туалету, на первом этаже предусмотрена установка ванны, на втором душевой кабины. На первом этаже тёплый пол, на втором батареи отопления, сделана разводка электросетей. Интернет через оптоволоконный кабель. Водоснабжение из скважины. Очистные сооружения - биостанция. К дому примыкает гараж, где возможно размещение до четырёх автомобилей. С лицевой стороны дома открытая терраса, площадью 35 кв.метров (её площадь, в общую площадь дома, не входит). Участок, 10 соток, огорожен забором из евроштакетника. Ворота сдвижные автоматические. [#7931051#]



