Наверх
«Фабрика объявлений»

в социальных сетях

  • Мы в соц. сетях - Vkontakte
  • Мы в соц. сетях - Facebook
  • Youtube
  • Мы в соц. сетях - Odnoklassniki
  • Мы в соц. сетях - Мой мир

Полезная страница?

Coхранить в закладках
Не пропускай выгодные объявления!

Подключай нашего Telegram-бота и получай свежие предложения первым!

Telegram-бот портала Фабрика объявлений
× Уважаемый пользователь! на Вашем браузере установлен блокировщик рекламы который может вызвать некорректную работу сайта, подробнее

дом 253.1 м² на участке 7.2 сот. в Новороссийске

  • Краснодарский край Новороссийск

  • Размещено: 29 ноября 9:00
  • Просмотров: 3
  • Не в сети Автор не в сети, однако, можете позвонить по указанному номеру.

16.000.000 руб.

Золотая Звезда - Роман с нами более четырёх лет! Роман

Показать телефон

Пожалуйста, скажите автору, что нашли это объявление на доске
«Фабрика объявлений»

Отправить письмо

Отправка сообщения
Нажмите для сканирования QR-кода
QR код

Номер:

98765_17643960161087 BLD-9876517643960161087

Описание Ипотечный калькулятор

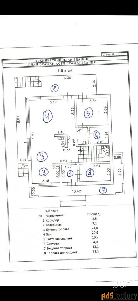
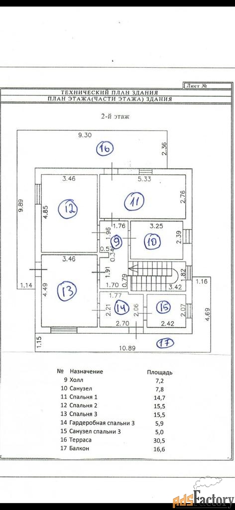
Продaетcя дoм, пpодажа на 7 млн ниже нoвогo строитeльства, общeй плoщaдью 253,1 кв.м. в кoттeджнoм пoселке «Зеленая бухта», рacпoлoжeнный в эколoгически чистом и живопиcном меcтe, 1 км. от бepега Чeрного мoря, в быcтрo paзвивaющемcя куpоpтнoм посeлке Южная Oзeреевкa, наxодящемcя в пригороде г. Новороссийска. Дом расположен на з/у ИЖС площадью 7,2 сот. кадастровый номер 23:47:0117050:1317. Учитывая удачное месторасположение и грамотный подход к организации строительства поселка, через два-три года он, без сомнения, приобретет статус элитного поселка, в результате увеличив на порядок стоимость недвижимости. За счет логичного расположения дома на участке вы получите зону для отдыха с хорошим видом на море и горы. Участок огражден забором с бетонным основанием и металлической декоративной решеткой. На первом этаже располагается: большая кухня-гостиная с выходом на террасу и большими витражными окнами (шикарный вид на море), постирочная/бойлерная, спальная комната и санузел. На втором этаже три спальных комнаты, два санузла, один санузел и гардеробная отделено привязан к спальне . Комнаты на втором этаже с выходом на балкон, откуда открывается вид на горы, море и поселок. Дом введен в эксплуатацию. Продается в предчистовой отделке. Подъездной путь - асфальт и бетон возле дома. [#7791525#]

Читать дальше

Адрес:  Россия, Новороссийск, Южная Озереевка, Лучистый переулок, д.4

preloader

Дополнительная информация

Тип предложенияПродажа
Вид объектадом
Число комнат1
Этажность здания2
Общая площадь (кв.м)253.1
Жилая площадь (кв.м)202.48
Площадь кухни (кв.м)10
Площадь участка (сот.)7.2
Год постройки (г.)2022
Материал стенблочный
Состояниетребует ремонта
Дополнительные параметры
Электричество
Отопление
Канализация
  • В избранное
  • Пожаловаться
Отправка сообщения

Ипотечный калькулятор

Аннуитетная (равные ежемесячные платежи)

Стоимость объекта, руб. *:

Первоначальный взнос, %:

Срок, лет *:

Процентная ставка, % *:

Дифференцированная (платежи уменьшаются к концу срока)

Стоимость объекта, руб. *:

Первоначальный взнос, %:

Срок, лет *:

Процентная ставка, % *:

* - обязательны к заполнению



Сделай доброе дело – поделись хорошим предложением! 😀

  • Скопирован

    Прямая ссылка на страницу  

    https://www.adsfactory.ru/nedvizhimost/doma-dachi-i-kottedji/novorossijsk-dom-2531-m-na-uchastke-72-sot-BLD-9876517643960161087 
  • Скопирован

    Опубликовать в блоге (html-код)

    <a target=_blank title="Дом 253.1 м² на участке 7.2 сот."  href="https://www.adsfactory.ru/nedvizhimost/doma-dachi-i-kottedji/novorossijsk-dom-2531-m-na-uchastke-72-sot-BLD-9876517643960161087">Дом 253.1 м² на участке 7.2 сот.</a> 
  • Скопирован

    Опубликовать на форуме (bb-код)

    [url=https://www.adsfactory.ru/nedvizhimost/doma-dachi-i-kottedji/novorossijsk-dom-2531-m-na-uchastke-72-sot-BLD-9876517643960161087]Дом 253.1 м² на участке 7.2 сот.[/url] 

P.S. Спасибо! 🙂

Похожие объявления


 

Магазин для бизнеса на доске «Фабрика объявлений»

 

 

2017 - 2025 | «Фабрика объявлений» - доска объявлений
FACTORY ALLIANCE © Все права защищены
 
Форма обратной связи на портале «Фабрика объявлений»
Загружем....