Наверх
«Фабрика объявлений»

в социальных сетях

  • Мы в соц. сетях - Vkontakte
  • Мы в соц. сетях - Facebook
  • Youtube
  • Мы в соц. сетях - Odnoklassniki
  • Мы в соц. сетях - Мой мир

Полезная страница?

Coхранить в закладках
Не пропускай выгодные объявления!

Подключай нашего Telegram-бота и получай свежие предложения первым!

Telegram-бот портала Фабрика объявлений
× Уважаемый пользователь! на Вашем браузере установлен блокировщик рекламы который может вызвать некорректную работу сайта, подробнее

дом 63 м² на участке 4 сот. в Краснодаре

  • Краснодарский край Краснодар

  • Размещено: 3 июля 10:11
  • Обновлено: 3 ноября 1:24
  • Просмотров: 95
  • Не в сети Автор не в сети, однако, можете позвонить по указанному номеру.

4.770.000 руб.

Золотой знак - Алексей с нами уже почти три года! Алексей (Частное лицо)

Показать телефон

Пожалуйста, скажите автору, что нашли это объявление на доске
«Фабрика объявлений»

Отправить письмо

Отправка сообщения
Нажмите для сканирования QR-кода
QR код

Номер:

16 объявлений пользователя

118355_1719990606 BLD-1183551719990701

Описание Ипотечный калькулятор

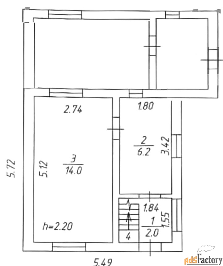
Предлагаем компактный двухэтажный дом 63 кв.м Дом с тремя комнатами, балконом, В 2024 году сделан ремонт, после которого появилась гостиная и санузел. Ремонт стоимостью 500 тыс. руб., В подарок техника. Дополнительные бонусы: летняя кухня с санузлом и кладовой, огород с теплицей. Если вы предпочитаете квартире дом с огородом и садом, то это жилье идеально!

Читать дальше

Дополнительная контактная информация

  • Контактное лицо: Алексей

  • Номер телефона: 89608672858

  • Адрес: Цветочная

Адрес:  Краснодар, Карасунский внутригородской округ, микрорайон Камвольно-суконный Комбинат, Цветочная улица

preloader

Дополнительная информация

Тип предложенияПродажа
Вид объектадом
Число комнат2
Этажность здания2
Общая площадь (кв.м)63
Жилая площадь (кв.м)27
Площадь кухни (кв.м)12
Площадь участка (сот.)4
Год постройки (г.)1992
  • В избранное
  • Пожаловаться
Отправка сообщения

Ипотечный калькулятор

Аннуитетная (равные ежемесячные платежи)

Стоимость объекта, руб. *:

Первоначальный взнос, %:

Срок, лет *:

Процентная ставка, % *:

Дифференцированная (платежи уменьшаются к концу срока)

Стоимость объекта, руб. *:

Первоначальный взнос, %:

Срок, лет *:

Процентная ставка, % *:

* - обязательны к заполнению



Сделай доброе дело – поделись хорошим предложением! 😀

  • Скопирован

    Прямая ссылка на страницу  

    https://www.adsfactory.ru/nedvizhimost/doma-dachi-i-kottedji/krasnodar-dom-63-m-na-uchastke-4-sot-BLD-1183551719990701 
  • Скопирован

    Опубликовать в блоге (html-код)

    <a target=_blank title="Дом 63 м² на участке 4 сот."  href="https://www.adsfactory.ru/nedvizhimost/doma-dachi-i-kottedji/krasnodar-dom-63-m-na-uchastke-4-sot-BLD-1183551719990701">Дом 63 м² на участке 4 сот.</a> 
  • Скопирован

    Опубликовать на форуме (bb-код)

    [url=https://www.adsfactory.ru/nedvizhimost/doma-dachi-i-kottedji/krasnodar-dom-63-m-na-uchastke-4-sot-BLD-1183551719990701]Дом 63 м² на участке 4 сот.[/url] 

P.S. Спасибо! 🙂

Похожие объявления


 

Магазин для бизнеса на доске «Фабрика объявлений»

 

 

2017 - 2025 | «Фабрика объявлений» - доска объявлений
FACTORY ALLIANCE © Все права защищены
 
Форма обратной связи на портале «Фабрика объявлений»
Загружем....